Кухня недели: пристройка в Сиэтле справится с толпой

Дизайнеры смешивают классический и современный стили в светлом место сбора для пары и их расширенный семья


Переосмысление кухниФотоМелисса Касеман
Кухня недели
Кто здесь живет:пара
Местоположение:Сиэтл
Размер: 27 квадратных метров (290 квадратных футов)
Дизайнеры:Harmony Weihs of (дизайн интерьера) и (архитектура)
Желание владельцев внести больше света, создать социальный центр и справиться с толпой, вдохновившей это кухонное дополнение к их Сиэтл домой. «Эта пара любит развлекаться и иметь много большая семья рядом. У них более 20 гостей на регулярно, а не раз или два в год», — говорит интерьер дизайнер Хармони Вейхс, работавший над другими проектами в домой и хорошо знал их вкусы. «Архитектура их дома довольно традиционные, но они более современные. Смешение стилей в здесь стало еще интереснее», — говорит она.
Вейс и ее клиенты делились своим видением пространства. «Я всегда пользуюсь Servista, — говорит она. «Это помогает мне увидеть, что важно моим клиентам. И если им нужен небольшой толчок за пределами их зону комфорта, я могу показать им примеры, похожие на то, что Я предлагаю.
«Я сотрудничал с архитектором Лорен Крокко над дополнением — мы работал в тандеме, она концентрировалась на внешности, а я работал над интерьером», — говорит Вейхс. сделал дизайн пришел к жизнь.
Линия крыши пристройки выходит за пределы кухни, образуя крытая веранда, где хозяева планируют устроить барбекю и бар в качестве следующего этапа проекта.

Переосмысление кухниСтоловая
Дизайнеры также превратили бывшую кухню в настоящую Столовая. Перенос кухонной техники и шкафов предоставил прекрасную возможность добавить три окна, чтобы позволить при естественном освещении, что немаловажно в городе с таким много серых дней.
«При проектировании мы должны были учитывать их присутствие каждый раз. день, а также то, как он справится с 22 людьми», — говорит Вейхс. Для большие посиделки, пространство может вместить два обеденных стола установить параллельно заказной кожаной банкетке.
«Они не большие телевизионщики, но они знали, что когда у них вечеринки, все оказываются на кухне, поэтому они хотели быть в состоянии поставить на игру или запустить свиток семейных фотографий на этом стене», — говорит Вейс. «Я украсил его бра, и он исчезает в темном цвете стены».
Столовая имеет плоский потолок высотой 8 футов, что-то домовладельцы были рады улучшить кухонную пристройку. «Это было сложно, потому что у них есть вторая история, которую нужно было поработайте с линией крыши надстройки», — говорит Вейхс. Крокко разработал линия крыши, которая позволяет потолку кухни подниматься с высоты 9 футов, 4 дюймов в высоту в задней части дома до 11 футов в высоту, где он встречается со столовой.
Переосмысление кухни Сводчатый потолок делает кухню воздушной и светлой. Его покрыты шпунтованными панелями, традиционным материалом это более эффектно, чем гипсокартон.
Зона подготовки и очистки
Нарезать овощи и мыть посуду не так уж и плохо с прекрасный вид на частный задний двор. Эта стена окон одна из важнейших функций кухни. Сотрудничество между архитектором и дизайнером интерьеров было критическим: Crocco придумали, как конструктивно вписать столько окон, сколько возможно, и Вейс расположил встраиваемую раковину по центру окон, создание фокуса с внешним видом. Четыре больших световых люка сделать комнату еще ярче.
Белые шкафы — это классический и универсальный стиль Shaker. столешницы изготовлены из кварцита Luce di Luna, природного камня, напоминает мрамор и более прочен, чем гранит. У них есть современный квадратный профиль и, 2½ дюйма, почти в два раза больше обычной толщины. «Рядом с другим крупномасштабным элементов в этой комнате, стандартная толщина выглядела бы слабак», — говорит Вейхс. Матовый черный смеситель и фурнитура для шкафа играйте с черными оконными рамами.
Краска: Pure White (шкафы) иFleur de Sel (стены): ; фурнитура шкафа: ; раковина: ; кран:;dстиральная машина: ; винил под покраску утепленные окна:


Переосмысление кухниЗона собраний
Остров размером 6¼-на 6¼ фута — это сердце кухня. «Я очень хотел, чтобы у них был квадратный остров потому что он современный и отличается от большинства островов, которые вы видите сегодня», — говорит Вейс. Небесно-голубая краска добавляет комнате цвета и выделяет остров как центральную часть.
Люстра из латунного кольца наверху приятно увеличена. отношение к острову. Это также приносит круг в комнату сплошные квадратные края.
Сиденья окружают угол острова, облегчая беседу. «Ключевым было разместить здесь четыре табурета, — говорит Вейхс. Она тщательно продумали большие группы, которые будут собираться вокруг остров, когда она оценила его и поместила на планы. « минимальное пространство, которое я когда-либо оставлю, составляет 36 дюймов вокруг острова — это ширина коридора, но мне нравится оставлять больше, когда возможно», — говорит она. «48 дюймов здесь удобнее вместительный. Это оставляет пространство для людей, чтобы пройти друг мимо друга или пройти мимо открывайте ящики или дверцы приборов.
Островная краска: Down Pour, Sherwin-Williams

Переосмысление кухниКухонная зона
На рабочей стороне острова много столешниц. пространство напротив холодильника и плиты. Содержит ящик для микроволновой печи и паровые печи. Сторона острова напротив раковины есть глубокие ящики для хранения кастрюль и сковородок.
Помимо кольцевой люстры есть и другие светильники: простые бра из прозрачного стекла и латуни, освещение кофейного бара и встроенные потолочные светильники.
Холодильник:
Переосмысление кухни удлиненная плитка метро на фартуке происходит от . Вертикаль Ориентация привлекает внимание к изготовленной на заказ детали из тигрового дерева на вентиляционный колпак. Цвет плитки такой нежный и похожий на краска для стен, которую трудно увидеть на других фотографиях, но общий фартук очень высокий и соответствует высоте диапазон фартука. «Выбор тонкого фартука действительно сделал окна лопаются», — говорит Вейхс.
Она позаботилась о том, чтобы было достаточно места для работы и подготовки столешницы. близко к диапазону. Шкафы вокруг ассортимента специально оборудован для трав и специй слева и кухонной утвари справа.
Диапазон: ; вставка капота: наполнитель горшка: Waterstone Смесители
Переосмысление кухниКладовая и кофейная зона
«Эти домовладельцы действительно любят кофе. У них есть эспрессо-машина коммерческого класса, и они даже обжаривают свои собственные бобы», — говорит Вейс. Имея это в виду, она открыла кофейню. в комплекте с собственной барной раковиной и местом для принадлежностей. высокий шкаф слева — это кладовая.
Район выделяется несколькими способами. Weihs разработал специальное открытое полка с соответствующими выступами из того же кварцита, что и столешницы. Подсветка Puck освещает полку и фартук, того же цвета, что и фартук в другом месте, но в шестиугольная плитка вместо вытянутой плитки метро.

Переосмысление кухниA Место для вина

Вот вид на столовую из новой кухни. высокий шкаф слева предназначен для хранения вина и белья.
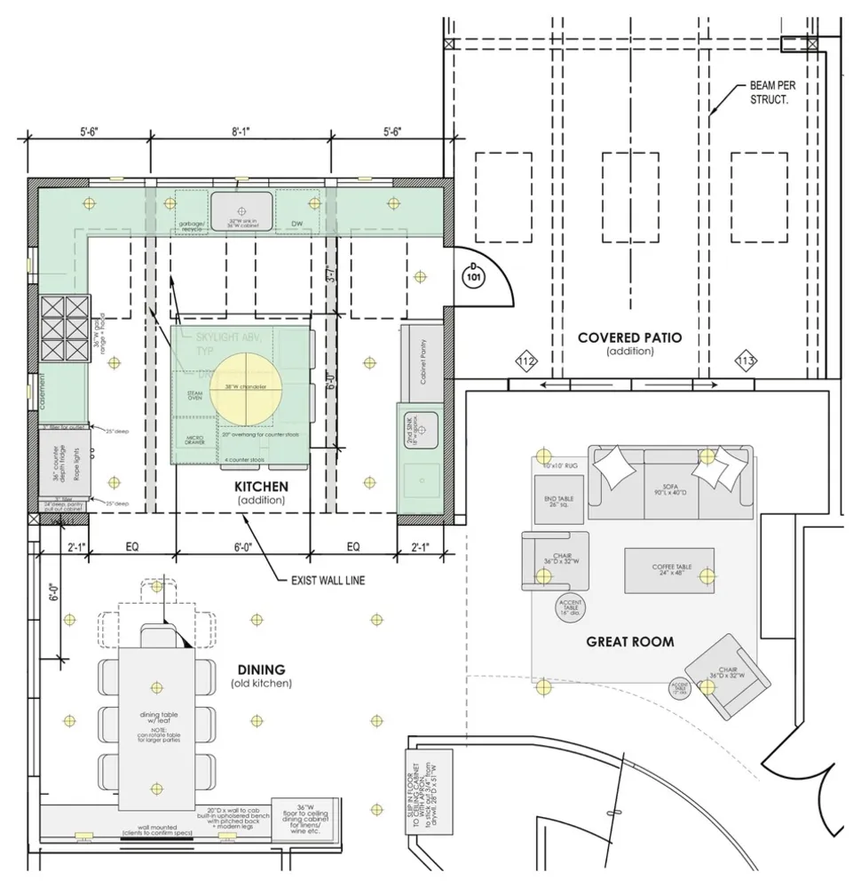
Кухня недели: новое дополнение способно справиться с большой толпойВкл. план этажа, столовая внизу слева, а кухонная пристройка над ней. Крытый внутренний дворик находится наверху. правый угол; вы можете увидеть дверь в него слева от кафе-бар.
Выводы
<ул>
  • Сделайте так, чтобы телевизор исчезал, установив его на темном стена.
  • Помогите привлечь внимание к видам снаружи с темным окном отделка против светлых стен.
  • Рассмотрите толстый и квадратный профиль столешницы для большего современный вид.
  • Убедитесь, что вокруг острова достаточно места для вас. чтобы функционировать так, как вам нравится на кухне. И не забудьте подумайте о том, сколько места будет, когда посудомоечная машина или дверца духовки открыта.
  • Выделите места для хранения масла, специй, приправ и кухонная утварь рядом с плитой, но не слишком близко к плите источник.


  • # Ремонт квартиры