Кухня недели: зоны, которые лучше всего подходят для этого занятого человека Семья

Места для еды и напитков, а также для приготовления пищи и уборка — не допускайте хаоса на кухне в Колорадо

A стечение обстоятельств привело к полному обновлению этого 1980-х годов. кухня в Литтлтоне, Колорадо. Хозяйка дома, мать двоих детей старшеклассники, необходимые для замены некоторых основных приборов о в то же время она заглянула в кухню своей соседки с открытой планировкой ремонт. Она поняла, что ей тоже нужна открытая планировка — одна это будет работать для ее семьи, обеспечит больше памяти и обновлений внешний вид комнаты.
Кухня Саут-Лонг-Спрингс-БьюттФотографии Ребекки Энн Фотография
Кухня недели
Кто здесь живет:мать, двое ее подростков, немецкий дог и кошка
Местоположение: Литтлтон, Колорадо
Размер: около 150 квадратных футов (14 квадратных метров)
Дизайнер:Фарис Спинози из
Хаотичное утро вдохновило на создание нового макета. Никто в семье готовили много, но только время покажет, потому ли это все ненавидели тусоваться в темной закрытой кухне или потому что они все равно никогда не собирались много готовить. «Потому что она знала, что, вероятно, будет сокращать штат после того, как ее дети закончили через несколько лет, мы также сохранили привлекательность для потенциальных покупателей, которые много думают о готовке при его разработке», — говорит Фарис. Спинози, ведущий дизайнер проектно-строительной фирмы TVL Creative.
Чтобы передать желаемый вид, домовладелица показала вдохновляющие фото дизайнерской кухни на Servista. «Она хотела, чтобы быть утонченной, но также отражать веселье ее семьи личности», — говорит Спинози. «Она показала мне фотографии полностью белых кухни, которые ей нравились, и сказала мне: «Вот так, но не так стерильно». назвала бы ее стиль casual-chic».

KOW TVLДо фотоДо:примерно в 150 лет квадратных футов, кухня была просторной, но отделка и стены заставляли его чувствовать себя закрытым и отрезанным от остальной части дом. Между кухней и столовая и зона приема пищи, которых не было у домовладельцев. заинтересован в сохранении. Дубовые шкафы и бордовые стены и столешницы сделали его темным. И отсутствие любого типа кладовой не удовлетворяет потребности семьи в хранении.

Кухня Саут-Лонг-Спрингс-БьюттСтратегия планировки и Архитектурные изменения
Замена стены между столовой и кухней на полуостров был наиболее впечатляющим изменением. Это позволяет кухне наслаждаться светом из соседних комнат, заставляет семью чувствовать себя более соединенных, создает буфет, обслуживающий пространство для столовой и предоставляет барную стойку, которая не мешает повару.
Вернемся к тому утреннему хаосу — старая кухня была неблагополучный во время завтрака. «Они всегда торопились и мешают друг другу здесь», — говорит Спинози. Они нуждались в ее помощи выяснить, как они могут готовить в микроволновке, поджаривать, делать смузи или кофе и уборка за собой без натыкаясь друг на друга. Это подсказало ей: вместо , им нужен был .
Полуостров обеспечивает зону приема пищи и место для приготовления пищи. Площадь до справа зона приготовления пищи и мелкой бытовой техники. Хатч-подобный шкаф в центре задней стены — там берут посуду; это делает для красивого вида из столовой. Слева от это станция напитков и продуктов питания, которая включает в себя холодильник, кофейная станция, микроволновая печь и винный холодильник. Есть а также широкий проход из столовой в зону напитков — это удерживает трафик от подготовки, приготовления пищи и уборки станции.
: Освещение долины Гудзона
Кухня Саут-Лонг-Спрингс-БьюттМойка посуды и приготовление пищи Зона
Полуостров включает в себя раковину фермерского дома, посудомоечную машину и мусорное ведро. вытаскивать. Он служит социальной зоной, зоной обслуживания и подготовкой. станция рядом с полигоном.
В шкафчиках со столешницей сразу за раковиной находится гараж для мелкая бытовая техника в комплекте с вилкой для приготовления смузи, миксер, кухонный комбайн и тостер.

Кухня Саут-Лонг-Спрингс-БьюттКухонная зона
Плита находится в дальнем конце кухни, что дает повару много места для передвижения. Несмотря на то, что диапазон находится на комнату из холодильника, полуостров является хорошим местом для сдача предметов для подготовки. И люди могут добраться туда и обратно холодильник, не мешая повару.
Еще не принято решение о том, будет ли готовиться больше. теперь, когда у домовладельца есть кухня, на которой ей нравится проводить время. Но Спинози разработал его не только для того, чтобы поощрить кулинарные усилия, но и удовлетворить потенциальных покупателей вниз дорога. Она обозначила шкафы рядом с ассортиментом для масел, травы, специи, кухонная утварь и кастрюли и сковородки. И Гараж для бытовой техники обеспечивает место поблизости для ряда небольших приборы, которые понадобятся любому повару, когда он что-то готовит вкусно.
KOW TVLФото доДо: старые дубовые шкафы не вмещали в себя больше места и были устаревшими и темно.
Кухня Саут-Лонг-Спрингс-Бьютт Мебель, похожая на хижину, на слева отведено центральное место для повседневного фарфора, посуды Tupperware. и дополнительные кастрюли и сковородки. Его расположение прямо напротив посудомоечная машина упрощает разгрузку.
Шкафы-шейкерыn Linen White:

KOW TVLДо фотоЕда и напитки Зона
До:"Этот кухонный стол хорошо работал, когда дети маленький, но все в этой семье высокие, и у них были проблемы, все удобно умещающиеся вокруг него», — говорит Спинози. "И один человек с ноутбуком и разбросанной работой занялся бы всю таблицу."
Еще одна вещь, которую они были готовы потерять, это окно за дверью. стол, который обеспечивал вид только на сайдинг в их углублении парадный подъезд. «Это район, где люди склонны бросать за все время. Моя клиентка сказала мне, что вот-вот выпрыгнет из нее кожа всякий раз, когда она сидела здесь и смотрела вверх, чтобы увидеть человека стоит там», — говорит Спинози. Стена это было относительно легко в этом месте — сайдинг снаружи был легко подобран, и это было небольшая стена для покраски.
Кухня Саут-Лонг-Спрингс-БьюттПотеря обеденной зоны и окно для создания этой зоны еды и напитков было хорошим решением для семьи. Холодильник окружен хранилищем, в том числе большая кладовая с выдвижными ящиками. Зона также включает кофейную станцию, винный холодильник и ящик для микроволновой печи, оставляя достаточно места для хранения напитков стаканы, открывая бутылки и загружая кофеварку. Все находится вне диапазона и раковины, что помогает транспортный поток, особенно по утрам в будние дни.
Кухня Саут-Лонг-Спрингс-Бьютт Спинози поместил Ленивую Сьюзан в угол и узкий шкаф справа от винного холодильника для вертикального хранения.
«Я пытаюсь использовать один из них для хранения противней, выпечки. листы и разделочные доски вертикально на каждой кухне я могу. Это делает это намного проще, чем копаться в стопке», — сказала она. говорит.

Кухня Саут-Лонг-Спрингс-Бьютт Другое большое окно вдоль перед домом стоял сторож, а высота нового столешница вдохновила на умное решение. «Установка окна, которое со столешницей здесь было бы намного сложнее и дороже, чем замуровывать другое окно. Это было бы означало замену окна, переделку и покраску всей сторону дома», — говорит она.
Вместо этого она сделала окно позади прилавка, где травы могли развиваться на солнце. Она покрыла поверхность в соответствии кварц, чтобы противостоять любой сырости от полива растений. сбережения означали, что ее клиент мог потратиться на винный холодильник, который она очень хотел. «Она любит приглашать друзей на стакан вина», — говорит дизайнер.
Кухня Саут-Лонг-Спрингс-БьюттОтделка
Теперь, когда мы наметили зоны, давайте поговорим о стиле и заканчивается. Придать пространству индивидуальность и уберечь его от перекосив слишком бесплодно, Спинози добавил цвет, рисунок и текстуру. Она знала, что хорошее место для работы в самом живом и цвет фартука был по гамме. Она выбрала энкаустику цемента плитка из, защищенная от брызг.

Кухня Саут-Лонг-Спрингс-Бьютт Спинози использовал мелиорированный деревенский стиль. амбарная древесина для обрамления окна и обозначения еды и напитков зона. Он представляет собой теплый контрапункт в стиле Скалистых гор. живая синяя плитка для фартука и белоснежная мебель. Подвесные светильники Gиз латуни и латуни делают пространство светлым и откройте.
Кухня Саут-Лонг-Спрингс-БьюттСтолешницы Каррарский кварц. «У Каррары есть модель, которая обеспечивает нюансы текстуры и движения. У нас было много места на столешнице, чтобы покрытие, и что-то с более заметными прожилками имело бы переполняли плитку фартука», — говорит Спинози.
«Моя клиентка с самого начала знала, что любит из латуни», — говорит она. Медь заканчивается на фурнитуре, смеситель и осветительные приборы превращают «шик» в «повседневный шик».
в Golden Champagne: Amerock
Кухня Саут-Лонг-Спрингс-БьюттТабуреты с латунными основаниями и обивка из искусственной кожи продолжает текстурную историю кухни в пространство столовой.
Здесь есть еще один хитрый трюк: Спиноза добавил шкаф на с этой стороны (со стороны кухни это был бы тупиковый угол в любом случае). Такой шкаф отлично подходит для белья и сервировки предметы, которые не используются каждый день. И эта семья находит это пригодится для хранения дополнительных вещей для собак и кошек.
«Мой клиент был над ковровым покрытием и плиткой на первом этаже», говорит Спинози. Хотя клиенту понравился внешний вид лиственных пород, не выдержал бы износа от снежных сапог, спортивный инвентарь и немецкий дог. И установка лиственных пород на первом этаже было бы дорого. Вместо этого дизайнер нашел водостойкий ламинат, который выглядит как дерево. «Этот пол может выдержать удары, и он никогда не должны быть запечатаны», — говорит она. В дополнение к своему долговечность, не требующая особого ухода, а также мягче на ногах, спасибо на пробковую подложку.

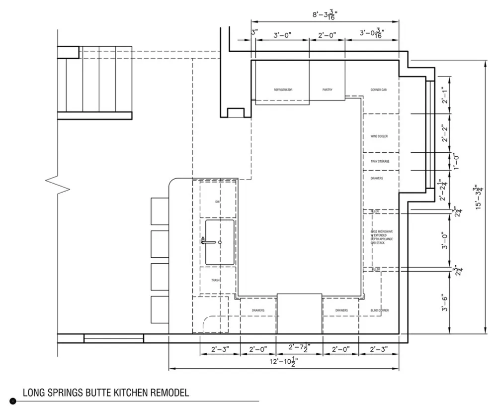
KOW TVLНа плане слева столовая и кухня справа. Проем на кухню шире и теперь обеспечивает обзор через семейную комнату (за пределами вверху страницы за лестницей).
Выводы
<ул>
  • Добавьте индивидуальности полностью белой кухне с помощью цвета и шаблон.
  • Поговорите со своим дизайнером о том, как ваша семья работает в кухне в течение дня, чтобы он или она могли разобраться лучший макет для вашего образа жизни.
  • Познакомьтесь с трюком Спинози с оконным колодцем, чтобы увидеть, как вы можете иметь возможность работать с существующим окном, которое опускается ниже столешница.
  • Убедитесь, что энкаустическая цементная плитка хорошо запечатана при использовании на фартук (потребуется повторно нанести различные герметики на разные интервалы).
  • Подумайте о прочном ламинате, который может придать из твердой древесины, но выдерживают интенсивное использование, больших собак и снежную погода.


  • # Ремонт квартиры