Servista Tour: удаленный ремонт исторического дома в Италия

Архитектор, найденный на Servista, ремонтирует здание XI века. резиденция епископа в Комо, Италия, для клиентов в Англии

It все началось с телефонного звонка: английская семья просматривала Servista ищет архитектора, который возглавит проект реконструкции в Италии. Увидев профиль Паолы Фавретто, они решили назвать ее правильно прочь. Их первая беседа привела к другой, и еще. Клиенты и архитектор писали друг другу, разговаривали по телефону, делились фотографиями и идеями и, наконец, встретились в доме в Нессо, в провинции Комо на севере Италии. Проект должен был переоборудовать часть исторической постройки 11 века, в загородный дом.
Un'antica residenza scopre un'anima luminosa..e vacanzieraДом Краткий обзор
Кто здесь живет:английская семья с тремя детьми, которые использовать его как дом для отдыха
Где: исторический центр Нессо, за пределами Комо, Италия
Размер:100 квадратных метров (1076 квадратных футов)
Архитектор:
Un'antica residenza scopre un'anima luminosa..e vacanziera здание имеет долгую историю: дом был построен на месте старая церковь, которая датируется 1000 годом и была резиденцией епископ Комо, живший здесь с 1064 года до своей смерти в 1084.
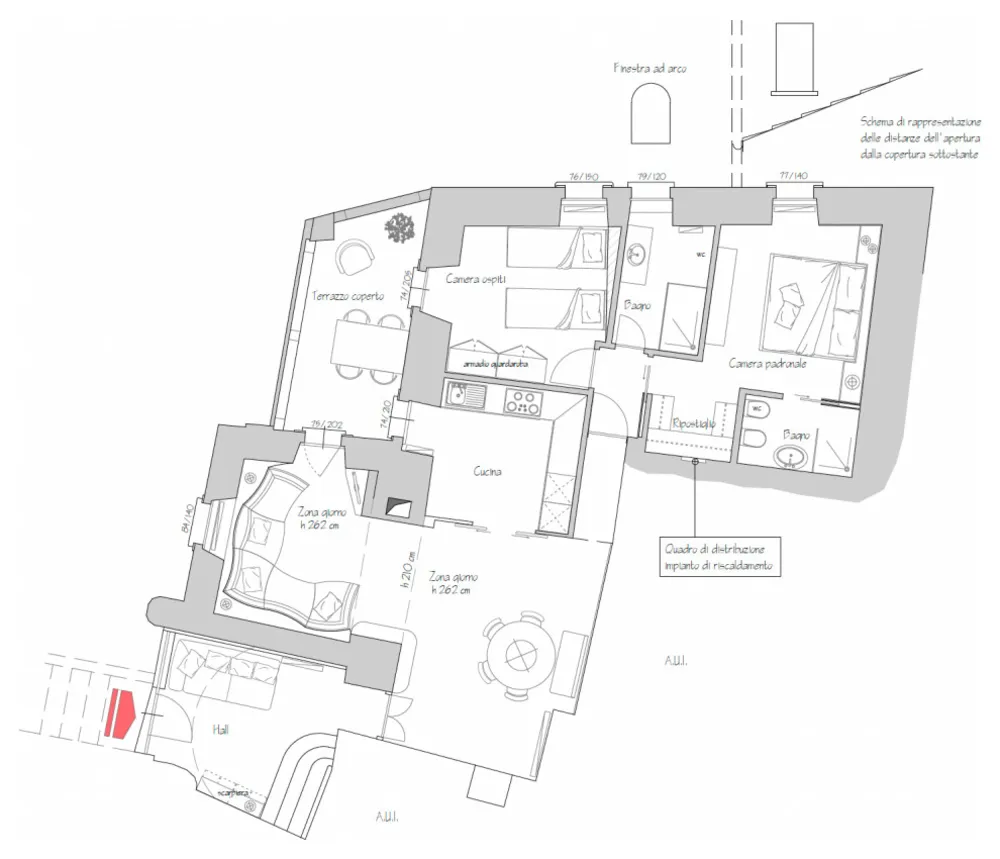
Здание реставрировалось несколько раз на протяжении веков, совсем недавно в 1980-х, когда он был преобразован в кровать и завтрак. Сегодня он разделен на три отдельных подразделения, включая новый загородный дом этой семьи. Владельцы планируют сдавать недвижимость в аренду, когда они ею не пользуются.

Nato su Servista NessoФото доДо: клиенты и архитектор продолжали работать вместе удаленно. "Мы работал над фотографиями, электронными письмами и телефонными звонками. Хозяева только пришли в Nesso трижды, по сути, чтобы определиться с материалами в человек. Остальными идеями мы делились на расстоянии — процесс был действительно гибким и простым», — сказал Фавретто. говорит
Nato su Servista NessoПосле:Самые важные структурные работа заключалась в том, чтобы убрать стену, которая разделяла кухню (обозначена Кучина в центре плана этажа) и жилая зона (с пометкой Zona giorno). Связь между двумя пространствами теперь более плавный, с раздвижной стеклянной дверью, которая пропускает свет и создает более воздушное ощущение.
Un'antica residenza scopre un'anima luminosa..e vacanzieraA зеркальная стена за обеденным столом справа и керамогранит по всему дому еще больше украсит пространство. Плитка была вдохновлена текстурой и цветом дерева. жилая площадь теперь включает в себя кухню, которая выходит на столовую и диванные зоны.
Un'antica residenza scopre un'anima luminosa..e vacanziera Разделение кухня из обеденной зоны представляет собой раздвижную стеклянную дверь с внутренняя панель из льняной ткани, чтобы сделать ее более непрозрачной.
Un'antica residenza scopre un'anima luminosa..e vacanzieraДо ФотоДо:Фавретто также удалил старую камин, подключение дымохода к новой печи. Перед ремонт, жилая площадь имела более деревенский вид с точки зрения как цвета, так и стиль.
Un'antica residenza scopre un'anima luminosa..e vacanzieraПосле:В в дополнение к существующей системе радиаторного отопления новая печка гарантирует комфортную температуру, создавая уют чувствую.
Un'antica residenza scopre un'anima luminosa..e vacanziera Фавретто разработали индивидуальный план зоны отдыха. Она создала полку за диванами, которые продолжаются вдоль стены, превращаясь в телевизор подставка, столешница, место для хранения и книжный шкаф. "Обычай Деталь изготовлена из дерева и окрашена в белый цвет RAL 9010 и подходит для неправильные углы старых стен. Все было сделано компанией плотники в Idee su Misura di Fabio Giai Levra», интерьер говорит дизайнер. Фрагмент обвивает все пространство.
Un'antica residenza scopre un'anima luminosa..e vacanziera приватная часть квартиры имеет главную спальню и еще одну спальня с двуспальной кроватью. Здесь Фавретто сосредоточился на добавлении новой ванной комнаты. изменение состава пространств и улучшение связь между спальнями и ванными комнатами.
Коридор сначала ведет в главную спальню с гардеробной, гардеробная и ванная комната. Легкие цветочные ткани придают космический характер. Они были выбраны совместно с Corsini Finiture d’Interni di Salò, которые также отвечали за шторы и другие текстильные изделия по всему дому.
Un'antica residenza scopre un'anima luminosa..e vacanziera просторная главная ванная комната с синим туалетным столиком и гардеробной. душ. Стена отделана плиткой размером 5 на 10 футов.
<изображение alt="Un'antica residenza scopre un'anima luminosa..e vacanziera" src="https://servista.es/img/157275586.webp" loading="lazy" title="Un'antica residenza scopre un'anima luminosa..e vacanziera">Зеркальное отображение главная спальня, двухместный номер особенно светлый благодаря окну и французским дверям, которые открываются на крытую терраса.
Un'antica residenza scopre un'anima luminosa..e vacanziera во второй ванной комнате есть просторная душевая кабина. Влияние ткани на керамогранит отражает изголовье кровати в главном спальня.
Un'antica residenza scopre un'anima luminosa..e vacanziera

# Ремонт квартиры