Kompakt hem i Virginia Hills ser till Japan

En arkitekt och en inredningsarkitekt skapar en energieffektiv stuga för kundens nya landsbygd livsstil

Högt uppe i västra Virginias böljande kullar, detta kompakta hus drar full nytta av sin bukola miljö. Husägaren träffade först inredningsdesignern Theresa Dorlini i sjätte klass, när de båda bodde i Japan. Efter de återanslutna år senare, anställde han henne för att göra inredningen design i sin lägenhet i Washington, D.C.
Nyligen, efter att ha tröttnat på sitt pressade jobb och stadsliv, har han gjorde en stor förändring: Han flyttade till Star Tannery, Virginia, på landsbygden, där hans familj ägde mark. Än en gång ringde han upp designer, denna gång för att designa en energieffektiv kompakt hytt med japanska inslag på fastigheten. Theresas man och affärspartner, arkitekten John Dorlini, ritade huset och hon koncentrerade sig på inredningen.
Zen Micro CabinFoton av Kip Dawkins Photography
Huset i ett ögonkast
Vem bor här:
En man och hans hund
Plats:Star Tannery, Virginia
Storlek:1 200 kvadratfot (111 kvadratmeter); två sovrum, två badrum
Designers: Theresa Dorlini (inredning) och John Dorlini (arkitektur), båda av
Husägarens familj driver en japansk-influerad säng och frukost på den expansiva fastigheten, och det lät honom välja mellan flera tomter att bygga på. Den här, mellan skogen och en äng, hade utsikt över en ankdamm och var tillräckligt nära bed and breakfast - där han hjälper till - för att vara bekvämt men långt tillräckligt bort för att ge honom integritet.
När huset designades, delade Dorlinis och husägaren Servista-bilder för inspiration. Theresa och hennes klient delade erfarenhet av att bo i Japan informerade en del om designen beslut.
"Det var viktigt att ta reda på hur huset skulle nästla sig in i landet, säger hon. Att höja huvudnivån tjänade två syften. En kunde de undvika de extra kostnaderna för gräva en källare. Och två, höjden gav bättre utsikt. Tvärs över husets framsida från vänster till höger finns en ingång veranda, vardagsrummet, matsalen och en avskärmad veranda. Det finns två sovrum, ett på varje våning, staplat ett ovanför andra på baksidan av huset.

Zen Micro CabinDäcket sträcker sig tvärs över framsidan av hus, med utsikt över ängen, ankdammen och skogen. En liten brand grop ger värme under kyliga nätter.
Ursprungligen föreslog formgivarna att man skulle använda stålkabelräcken för däcket. Men det här alternativet med trä och trädgårdstråd var det lättare på budgeten. Dessa stängsel är vanliga runt om lokala landsbygden, så denna nickning till folkspråket hjälper modernt hus passar in i dess lantliga omgivningar.

Zen Micro CabinBara uppför däckstrappan och genom en liten infälld veranda är en ingång som fungerar som ett lerrum. De Dorlinis tog en anteckning från japansk arkitektur för området, synlig här genom glasdörren.
"I japansk arkitektur kallas detta utrymme en genkan, där du går in och tar av dig skorna", säger Theresa. "Det är typiskt ett steg ner från resten av huset, för att innehålla smutsen i det området." Följaktligen är inträdet ett steg ner från bottenvåningen.
Husägarens mamma gav honom den japanska skärmen över soffa. Soffan var en av få möbler som kom med honom från hans urbana lägenhet. Theresa hjälpte honom att välja nästan allt annat för att passa detta markant annorlunda nya hem.
Till höger om trappan på huvudvåningen finns en hall som leder till gästrummet och ett komplett badrum.The trappor leder upp till husägarens sovrumssvit till höger och ett loft till vänster. Han använder loftet som sin arbetszon och njuter av utsikten ut över ängen från denna abborre. Det finns även en ikonisk LC4 schäslong där uppe, designad av Le Corbusiers ateljé 1928. Theresa nickade till arkitektonisk historia och möbeldesign genom att kurera några speciella bitar som den där.

Zen Micro CabinVardagsrummet är luftigt kompakt, men en skyhöga tvåvåningstak med en vägg av fönster gör att det känns mycket större. Fönstren har CACO motoriserade skärmar för ljus och värmekontroll.
De skarpa rätlinjiga vinklarna hos det svarta metallljuset fixtur spela av formerna på fönstren. Theresa lade till mer svart metall via fjärilsstolens bas och cocktailbord med glasskiva. En uppdaterad orientalisk matta hjälper till att definiera det mysiga rummet.
Windows: 100-serien,
Zen Micro CabinThe designern inkluderade också ett par LC1 selestolar, designade av Le Corbusiers studio, i vardagsrummets möbelmix. (Roligt Fakta: Gruppen arkitekter i Buenos Aires som ritade fjärilsstol, även känd som B.K.F. stol eller Hardoy ordförande, arbetade med Le Corbusiers studio vid den tiden. Ett annat roligt faktum: De två första B.K.F. stolar som anlände i USA gick till Frank Lloyd Wrights Fallingwater house in Pennsylvania och Museum of Modern Art i New York.)
Zen Micro CabinGaseldstaden har en enkel hög med grått keramiska eldklot som ser ut som stenar. The Dorlinis skapade en känsla av lugn i hela hemmet genom att använda naturliga eller naturliga material.
Golvet består av tjocka vinylplankor i trälook. De valde det slitstarka materialet som är lätt att rengöra eftersom inte ens genkan kan hålla undan smutsen som husägarens hund spårar in i huset.
Zen Micro CabinPrecis förbi den öppna spisen är kök och matsal. "Den här klienten älskar att underhålla", säger Theresa. Planlösningen John ritade ger ett enkelt flöde mellan utrymmen som är perfekt för fester.
Eldstaden är öppen på tre sidor så den kan avnjutas från vardagsrummet, matsalen och köket. En skänk som består av inbyggda skåp ger extra förvaring längs väggen. Wishbone-stolar lägger till ikoniska danska moderna delar till mixen.
Glasdörrarna leder till den avskärmade verandan med utsikt ängen och dammen. Verandan har direkt tillgång till däck.
Zen Micro Cabin"Detta husägaren är en utmärkt kock. Han gjorde oss en underbar måltid medan vi var där för fotograferingen, och han hjälper till när de behöver någon att fylla i matlagning på bed and breakfast, säger Theresa.
Eftersom ägaren älskar att underhålla och laga mat, Dorlinis ville skapa ett utrymme där han kunde vara en del av festen medan han lagar mat åt sina gäster. Dela ett pentry från matsalen med en bar gör susen.
För att spara på budgeten använde man färdiga lönnskåp med en medium fläck. Den strukturella kolumnen i den vänstra änden av stången är insvept i matchande trä.
Zen Micro CabinDetta är utsikten från köket över baren till matsalen och ut genom fönstren bortom. "För att det fanns en sådan betoning på vertikal höjd i det här huset betonade vi det horisontella med matsalsfönstren", säger Theresa. Hon förstärkte horisontella linjer med en lång armatur över bord.
Zen Micro CabinThe kökets palett är naturlig och lugnande. "De här plattorna är av glas men de har bara en glimt av reflektion", säger Theresa. De variation i gråtoner ger dem ett utseende av polerade staplade stenar. Bänkskivorna är en kvarts med ett utseende hon beskriver som "någonstans mellan sten och betong." Annan Orientalisk matta värmer upp golvet.
Zen Micro Cabin"Han är inte killen som någonsin skulle servera en drink i en röd Solo-kopp." säger Theresa med ett skratt. "Han vet verkligen hur man underhåller - han har rätt typ av glas för varje typ av dryck." Följaktligen lade hon till ettandra lager av skåp ovanför övre skåp för att maximera förvaringen i kompakten kök.
Zen Micro CabinÖvervåning, Shoji-skärmar i traditionell japansk stil skjuts upp för att avslöja sovrum. Den och det intilliggande badrummet ligger ett steg upp från loftområdet. "Vi höjde mastersviten ett steg till efterlikna genkan nedan, säger Theresa.
Shoji-skärmarna är gjorda av lönn och genomskinliga plast som har en pappersliknande kvalitet. "Traditionellt skulle dessa vara gjord av rispapper, men han behövde något mer hållbart på grund av sin hund", säger designern.
Zen Micro CabinThe plattformssäng är en annan möbel som husägaren tog med sig med honom från sin lägenhet. Den har förvaringslådor under. Theresa köpte öppna nattduksbord med rena, enkla linjer. Att hänga taklamporna från taket frigjorde utrymme till visa ett par japanska tryck över nattduksborden.
Zen Micro CabinHusägaren var intresserad av att behålla sovrum och badrum öppna för varandra. (Toaletten finns i en separat rum.) En gasspis delas av båda mellanslag.
Zen Micro CabinEn annan Japanskt inslag husägaren ville ha med var en ofuro, ett djupt badkar med en sittplats inuti. Theresa använde en stenplatta i badkaret för att ge en naturinspirerad touch. Fönster på två sidor av badkaret ger utsikt över trädet baldakin.

Zen Micro CabinBadrumsväggarna är täckta från golvet till tak i storformat porslinsplattor som har en stenbetong utseende. Den anpassade dubbla fåfänga är lönn och bänkskivan är polerad kvarts.
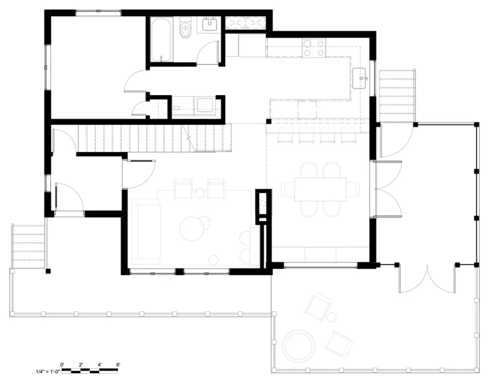
En kompakt stuga på landsbygden i Virginia med japansk smakDetta plan över huvudnivån illustrerar det lätta flödet mellan rummen och platsen för gästrummet och det kompletta badrummet på uppe till vänster.
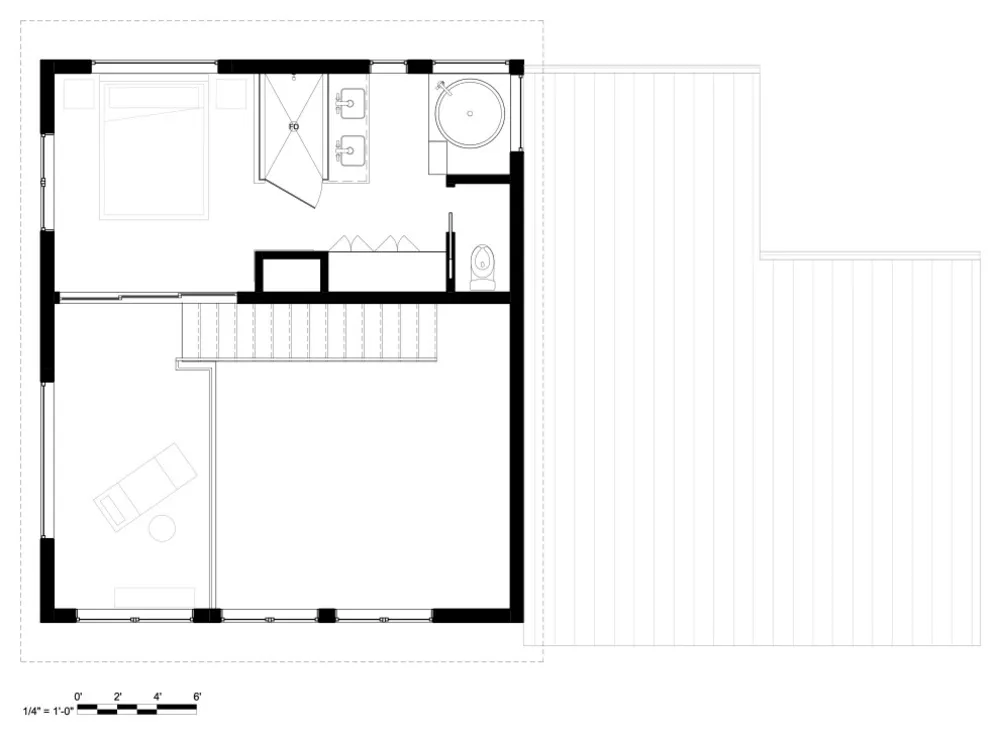
En kompakt stuga på landsbygden i Virginia med japansk smakDetta plan av den andra nivån visar loftet (nedre till vänster) samt den öppna sovrumssviten. Vattentoalett finns uppe till höger hörnet mittemot badkaret.
Husägaren prioriterade också energieffektivitet hemmets hållbara design, kompakta fotavtryck och en mängd olika element:


# Renovering av lägenhet