Fredligt japanskt hem med fantastisk utsikt över berget Fuji

Detta arkitektritade hem blandar japanskt och västerländskt påverkar och maximerar kust och berg åsikter

Inkluderar både franska influenser och japanska traditionell arkitektur, detta hem står på en kulle med utsikt kusten i Kamakura, Japan, med berget Fuji svagt synligt i bakgrunden. Varje våning har en annan stilinspiration — Västerländsk, japansk stil och resortstil — alla samexisterar organiskt. Hemmet erbjuder också sina ägare, en fransk konstnär och hans japanska fru, en mängd fantastiska vyer att beundra.
リビングより富士山と由比ガ浜を見るFoton av Kōichi Torimura

Huset i ett ögonkast
Vem bor här: Ett par
Plats: Kamakura, på Japans östkust, strax söder från Tokyo
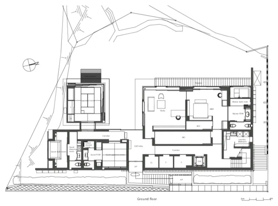
Storlek: 5 468 kvadratfot (508 kvadratmeter)
Designer:
Byggare: Daido Kogyo Co.
Vardagsrummet med matplats på andra våningen har utsikt över kustlinjen och Japans ikoniska berg Fuji. Andra rum erbjuder ytterligare vyer.
ファサードThe huset ritades av arkitekten Hitoshi Saruta avCUBO Design Architectsom kan område väl.
Projektets ledmotiv, en modern harmoni mellan Japan och väst, kan kännas i hela byggnaden, med början exteriör.För att bevara den ursprungliga känslan av gata, ett befintligt staket av Ōya-sten — en typ av vulkan sten som hittats i Japan - togs isär och återinstallerades som en stödmur. Entréns skarpa utseende kommer från kombination avmaki(Podocarpus) träd på taket av garaget, acetylerat trä jalusier accentueras av den armerade betongens raka linjer skelett och en smart gallergrind avhiba(Thujopsis, en typ av tall).
アプローチTrapporna var kvar på sin ursprungliga plats, men en betongtvättfinish, en trappsten, och en bädd av åkerfränder lades till för en modern Japansk look.
玄関Ytterdörren är gjord av järn behandlat med zink fosfat.
エントランスホールから庭を見るDen make, en konstnär, designade trädgården - paret samlade varje sten själva.
T3När husägaren bad Saruta att designa huset, han gav en ritning han hade gjort av sin föredragna layout. Han säger att de skulle göra det ofta träffas och diskutera designen så många som 13 timmar om dagen. De arkitekten övertygade konstnären om att layouten kunde organiseras bättre.
Resultatet är en plan som placerar entréhallen vid centrum, med huvudbyggnaden till höger i en västerländsk tradition och vänsterflygeln i japansk stil.
エントランスホールGolvet i entréhallen är kaklat med Genshō sten (en typ av skiffer), taket har Douglas granoch språngbrädan till den japanska sidan är granit.
Allt material valdes ut av paret. Konstnären tog med den antika soffan från Frankrike — den tillhörde hans mamma.
和室Den mest slående delen av bottenvåningen är ett rum centrerat på japansk traditionell arkitektur. De paret valde virket för alkovstolparna och taket tillsammans med arkitekten. tatamimattorna på golvet är anpassad.

和室を全開放にして母屋を見るDen Rum på 178 kvadratmeter vetter mot trädgården och den omgivande skogen. De skjutbara pappersskärmarna, glasdörrarna och luckorna som komponerar tre av dess väggar kan alla stuvas i väggfickor för att öppna upp den fantastiska utsikten. Taket bärs upp av tunna stålpelare som har målats svarta.
和室外観Verandan är en nästan exakt reproduktion, ner till , av en engawa — en övergångsutrymme mellan inne och ute — som ägaren såg in en bok om sukiya-arkitektur, en stil som går tillbaka till sent 1500-talet.
ゲスト用和風呂Detta är gästtoalett på bottenvåningen i den japanska flygeln, precis bakom det traditionella tatamirummet. De två kuberna på vänster sida av cypress badkar är kranhandtag designade av arkitekten.

書斎(障子開放時)Studien ser ut som ett vardagsrum. Trädet synligt genom fönstret bevarades som fokuspunkten för trädgård.

書斎Även om huvudbyggnaden är mestadels utförd i västerländsk stil, marken golvet fortsätter att innehålla japanska motiv, medan den andra golvet har europeiska funktioner. Bara nära dessashojidörrar och du är omedelbart transporteras till den japanska världen design.

寝室(簀戸状態時)The sovrum är anslutet till arbetsrummet i föregående foto.
Om du höjer bambuskärmen får du en annan vy över Mount Fuji.
マスターバスルームDetta badkar, i anslutning till sovrummet, ger en fridfull utsikt över berg.
ギャラリーとして機能する廊下En hall på bottenvåningen.
T3Hemmet, byggt på en svag sluttning, har ett underjordiskt garage för två bilar tillgängligt med en hiss från första och andra våningen.
2階メインエントランスDenna utsikt från hissen på andra våningen erbjuder en glimt av vardagsrummet, till höger, och köket till vänster. Skjutdörren mellan kök och hallen ekar designen av sovrummet, men medan bottenvåningen användertamoaska i i linje med det japanska motivet är denna dörr gjord av teak, som har en djupare brun som passar bättre med den europeiska tema.

リビングダイニングÄgarens konstnärligt sinne lyser i vardagsrummet.
リビングダイニングDen svarta hörnet på baksidan av rummet finns en öppen spis, liknande en ägaren hade vuxit upp.
リビングダイニング 夕景Utsikterna är särskilt dramatiska vid skymning — och obehindrat av balkongenav glas.
ダイニングキッチンDen stora köket har en matplats. Hustrun begärde en layout där ena sidan kunde användas för matlagning och den andra för städa. Terrassen bakom köketleder till en gästrum.
2階ゲストルームStrukturen av gästrummet är armerad betong vilket ger bra ljudisolering.
2階テラスDetta foto ser ut tillbaka över terrassen från pensionatet mot köket. Terrassen fungerar som ett utomhusboende. En trappa leder till taket.
屋上に上がる階段The kombination av blå himmel och vita trappor påminner om en Grekiska ön.

屋上プールThe taket ger utsikt över berget Fuji tillsammans med uppfriskande hav vindar.

外観構成Poolen och trä däck designades också av ägaren.
屋上プール 夕景(水中照明点灯時)När natten faller lyser dolda remsor upp kanterna på poolen, vilket ger scenen ännu mer magi.
西側外観 夕景Detta hus skapades med syftet att uttrycka olika teman på varje våning. Bottenvåningen erbjuder smak av Japan, med sin stenträdgård och skogslandskap på tre sidor; övervåningen presenterar en västeuropeisk dragningskraft och möjliggör bekväm avkoppling året runt; och taket är en miniresort, med sin glittrande pool och en 360-graders utsikt präglat av den ikoniska toppen av berget Fuji.
Mer om Servista


# Renovering av lägenhet