Veckans badrum: mörka skåp, skimrande kakel och Sittplatser

En husägare i Seattle-området arbetar med sin designer för att expandera hennes mästares fotavtryck, funktion och stil badrum

Om du ska spendera pengar på en renovering kan du lika gärna skörda frukterna. Ta det från Caren McGregor. Hon och hennes man, Jim, visste att de skulle göra det så småningom sälja sin bostad under sina äldre år. Och att göra mest av den försäljningen skulle de behöva renovera övervåningen master suite, som senast uppdaterades för 30 år sedan av en husägare som gjorde det själv med hjälp av hyllprodukter och material. "Vi visste att vi skulle behöva göra om något, så vi tänkte, 'Varför inte göra om det nu medan vi kan njuta av det?' " Caren säger.
Det startade en fullständig renovering av huvudsviten kännetecken som var en total översyn av badrummet till utöka fotavtrycket genom att flytta väggar utåt. Jobbar nära med sin designer, Kristine Tyler från Treefrog Design, de klämde in lika mycket förvaring, funktion och stil i det nya utrymmet som de kunde.
Mjuk och sofistikeradFöre fotoFoton av
Badrum i en blick
Vem bor här: Caren McGregor, som arbetar i redovisningsyrke; hennes man, Jim, som är pensionerad; och deras hund, himlen
Plats:Bothell, Washington
Storlek: 63 kvadratfot (6 kvadratmeter); 10 fot x 6 fot, 3 tum
Designer: Kristine Tyler från
Före:Det befintliga badrummet på 5 fot-1 tum x 9 fot hade inte mycket för det. Caren tror de första husägarna köpte huset när huvudbadrummet på övervåningen inte fanns ännu färdigställt och färdigställt det själva med hjälp av hyllan Produkter. "Jag tror att fåfänga faktiskt var ett köksskåp," hon säger. "Det var väldigt djupt."
Under tiden försökte Caren lägga till lagringsutrymme där hon kunde, installera ett trådställ nära taket för att hålla handdukar. "Det fanns helt enkelt ingen förvaring alls," hon säger.


Mjuk och sofistikeradEfter: Tyler utökade layouten genom att trycka ut väggen till vänster 12 tum in i trappavsats, och dörrväggen i förgrunden kom 15 tum in i en sittgrupp i sovrummet. Detta gjorde det möjligt för henne lägg till ett 12-tums djupt linneskåp från golv till tak till vänster och få in en större fåfänga.
En nyckelfunktion i utrymmet är en bänk som går från linneskåpet in i duschen, vilket ger husägare möjlighet att sitta inne eller utanför duscha."Det är bara skönt att ha en plats att sitta på inte toaletten, särskilt i mindre badrum, säger Tyler. "Det är ett ställe att varva ner, sitta innan eller efter duschen tänk efter en minut. Det gör hela skillnaden."
"Det är så skönt att sitta i duschen för att raka sig eller sitta ner när jag duschar hunden", säger Caren.
En liten trottoarkant och en ramlös glaspanel håller vattnet inne duschen.


Mjuk och sofistikeradFöre FotoFöre:Den ursprungliga fåfänga mätte 45 tum bred och 24 tum djup och 30 tum hög. "Det såg knäböjt ut och stack för långt ut i badrummet",Tyler säger.
Mjuk och sofistikeradEfter: Den nya fåfänga mäter 54 tum bred och 21 tum djup och 35¼ tum hög. Dessa extra tum gör hela skillnaden.
Caren började fundera på att renovera sina badrum för ungefär tre år sedan, och började med att titta på Servista bilder och skapa en idébok. "Jag skulle bara söka" foton och skanna igenom tills en fascinerade mig, det skulle träffa den där magen plats, och jag skulle spara den, säger hon. "Då skulle jag gå tillbaka och titta på alla de jag sparat och titta för att se vad det handlade om det där fotot som jag gillade. Sedan skulle jag sätta en lapp på det eller bli av med det det."
När hon hade cirka 75 bilder började hon leta efter en designer genom att söka efter designers i hennes område. Tyler och bilderna på hennes Servista-portfölj stack ut till Caren. "Vi pratade och jag gillade henne verkligen", säger Caren.
Caren hänvisade också tillbaka till Servista-foton under renovering. När hennes entreprenör sa att hon inte kunde ha ett uttag på väggen med fickdörren gick hon till Servista och hittade exempel på just den egenskapen. Hon och hennes entreprenör pratade om det över och bestämde sig för att de behövde skapa en tjockare vägg till rymmer uttagslådan och fickdörren. "Servista var så till hjälp på så många sätt", säger Caren.
Mjuk och sofistikeradTyler visste det första folk skulle se när de gick in i badrummet var baksidan duschvägg, så hon ville göra det till något roligt och vackert.
Caren ägnade lång tid åt att leta efter rätt kakel tills slutligen gå in i ett showroom en dag med Tyler och se det perfekta den ena, en spegelplatta med tjusigt glas och metall i.
"Det finns mycket kakel där ute - det kan bli överväldigande," säger Caren. "Och jag gillar allt. Om det är bra design gillar jag Det. Så det är svårt att tygla mig lite. Men så såg jag det bricka. Den har väldigt naturliga rörelser men den är fortfarande glänsande och snygga ut. Det var därför jag gillade det."
Caren och Tyler hade ursprungligen pratat om att göra det hela bakväggen i kaklet men Tyler övertalade henne att inte göra det. "Den skulle ha varit dyrt, säger hon. "Dessutom är det inte alltid mer bättre. Ibland mindre mängder av något som är vackert är bättre."
"Det var där att ha en designer verkligen hjälpte mig," säger Caren. "Det var en bra uppmaning från hennes sida att inte göra hela väggen."

Mjuk och sofistikeradTyler skapade ett funktionsband av vertikalt löpande kakel som inkluderar 10 x 16 tums plattor med remsor av 2 x 12 bitar av samma bricka. Hon omgav detta med 12 x 24 tums glänsande vita plattor. "Detta tillåter den speglade kakel för att verkligen sticka ut på egen hand utan att köra om utrymme", säger Tyler.
Ett "uh-oh"-ögonblick inträffade när dene tillverkaren av den spegelvända plattan ringde för att säga att företaget hade ändrade sin process och undertonerna i kaklet var krämigare än tidigare.Caren älskade fortfarande kaklet, men det innebar att de var tvungna att välja ut en ny golvplatta för att matcha den krämigare tona. "Det gick bra", säger Caren. "Jag älskar golvet. Den har lite textur så att den inte är hal alla."
En annan nyckelfunktion i duschen är duschen handtag, som Tyler
placerad på vänster vägg så att husägarna inte får sprayas med kallt vatten när du sträcker in den för att vända den på."Det är så perfekt", säger Caren. "Det är det lilla detaljer som räknas. Och återigen, det är där att ha en designer hjälper verkligen. De har erfarenhet av det här. Dom kan säg: "Passar detta din livsstil?" Hon har upplevt så många olika badrum och livsstilar som hon kan föreslå saker Jag hade aldrig tänkt på."
Mjuk och sofistikeradTyler och Caren valde en mörk espresso bets för skåpen för att balansera ut alla ljust kakel. "Jag ville bara inte ha något sådant gränsar till röda toner, säger Caren. "Espresson koordinerar så väl. Det står i kontrast till det vita och ger så mycket värme."
Träet är al, som "tar en fläck bra", Tyler säger.
Hon anser att dörrstilen är mer modern Shaker stil, snarare än att vara helt platt panel.
Skåp: French Roast bets,
Mjuk och sofistikeradCaren valde att gå med en sjunka snarare än två. "Jag gillade bara utseendet på renare linjer och inte ha alla dessa saker överallt, säger hon. "I en större badrum det skulle ha fungerat att ha två handfat, men här det skulle ha tagit upp hela bänkskivan."
I slutändan kom det till ett livsstilsbeslut. "I den lite av ett badrum där du inte riktigt kommer att ha två personer i samtidigt på regelbunden basis, säger hon. "Varje dag är vi inte tillsammans där inne. Undantaget att försöka göra sig i ordning kl samma tid händer inte så många gånger."
Bänkskivan är ett rikt grått material som kallas Aliveri av , a sammansatt produkt. "Det är typ ett mer modernt alternativ, det är det fick lite korn i det, säger Tyler. "Det gjorde bara helheten utrymmet ser mycket rikt ut. Det är som en natursten, det är ådring genomkroppslig, och ytan på materialet ser ut och känns som glas."
Samma duschplatta bildar ett bakstycke.
Spegeln var en bit som Caren har haft och gått runt olika familjemedlemmar genom åren. Hon bestämde sig för att ta itu med det som hennes första silverlövprojekt. Ramen var ursprungligen en krämfinish med falskt guldkant. Caren applicerade bladsilver alltså gnuggade över det med lite tonat vax för att ta ut en del av det glans. "Det var mitt lilla hantverksprojekt", säger hon. "Jag är verkligen nöjd med hur det kom ut."

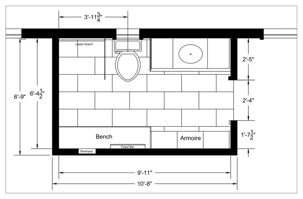
Veckans badrum: mjukt och sofistikeratFöre:Detta planritning av den ursprungliga layouten visar hur den skrymmande fåfänga stack ut i utrymmet.
Veckans badrum: mjukt och sofistikeratEfter:Pushing väggarna ut på botten och höger fick viktiga inches till rymma det nya linneskåpet, bänken och mer strömlinjeformad fåfänga. "Jag har verkligen njutit av det här badrummet," Caren säger.



# Renovering av lägenhet