Veckans kök: Mer utrymme och stil för familjen Tid

Ett designbyggande team hjälper husägare att lägga till film och skapa en praktisk layout med en stor ö för samling

Detta Minnesota-paret ville ha ett välkomnande familjekök där de kunde samlas med sina små barn. Men den snäva konfigurationen och liten ö i deras befintliga kök gjorde det nästan omöjlig. För att få det utrymme de ville ha anlitade de design-build proffsen Steve McDonald och Angela Barnhart från White Birch Design.
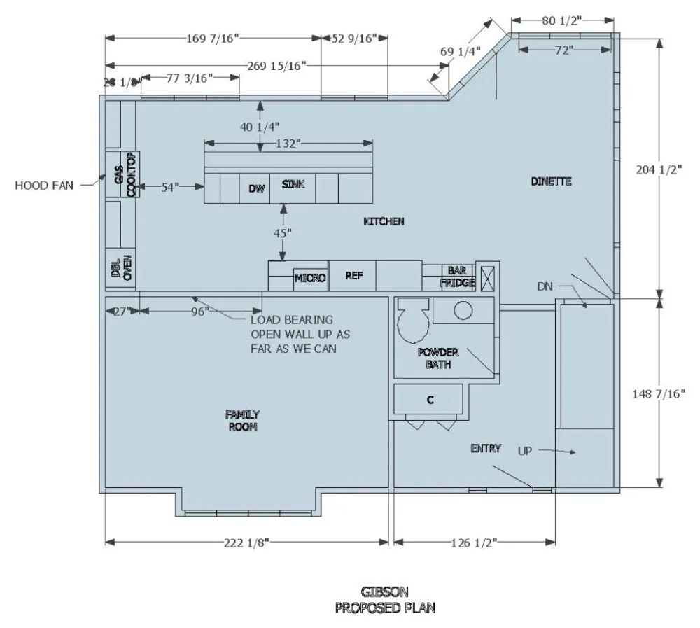
De två riktade sin uppmärksamhet mot en oanvänd formell matsal, införliva det utrymmet genom att slå ner en vägg, en rörelse som utökade kökets fotavtryck med 138 kvadratfot. Därifrån, McDonald och Barnhart skapade en mer fungerande kökslayout med en 11 fot lång ö som har gott om sittplatser. Skarp vit skåp, en blå ö-bas och rustika vinylgolv i trälook ge utrymmet en uppdaterad färgpalett som skapar välkomnande känsla paret ville ha.
Baker's Dozen Kitchen Remodel | Apple Valley, MNFöre Foto"After"-foton av
Kök i ett ögonblick
Vem bor här:Ett professionellt par med små barn
Plats:Apple Valley, Minnesota
Storlek: 450 kvadratfot (42 kvadratmeter)
Proffs för designbyggande: Steve McDonald och Angela Barnhart av
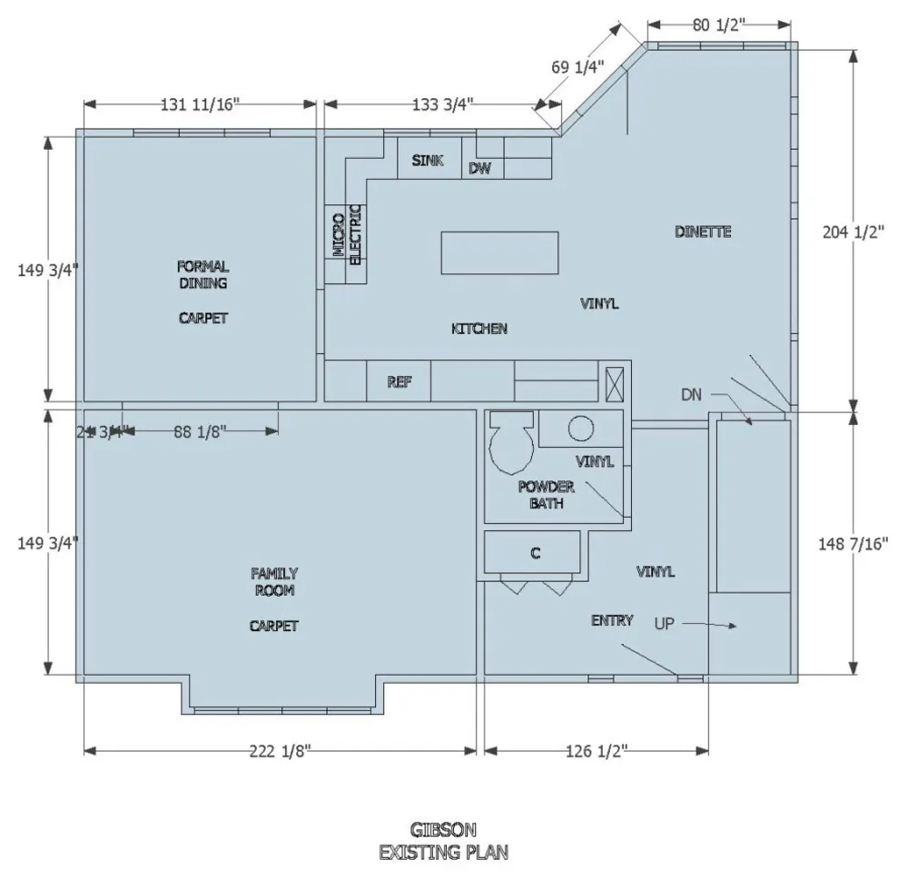
Före:Det tidigare köket hade gott om förvaring men kändes trång. En soffit tryckte ner de övre skåpen, ytterligare belamra utrymmet. Och en smal ö blockerade flödet medan erbjuder sittplatser för bara två personer. "Medan utrymmet inte skulle göra det kvalificera sig som små med vissa standarder, hade köket alltid kändes tätt för husägarna på grund av dess konfiguration", Barnhart säger.
Under tiden blandade honungsekskåpen visuellt med träet golv, och de ljusa bänkskivorna i laminat nästan matchade väggarna, vilket ger hela rummet ett dämpat utseende som gjorde det apparater sticker ut som svarta tomrum.
Bakdörren ledde till den sällan använda formella middagen rum.
Baker's Dozen Kitchen Remodel | Apple Valley, MN | White Birch DesignEfter:McDonald och Barnhart slog tillbaka köket till reglarna, tog ner väggen mellan kök och matsal och tryckte på fotavtrycket in i den tidigare matsalen. Det utökade köket med 138 kvadratmeter och tillåtet utrymme för den 11 fot långa ön med sittplatser för fem.
"Vi bestämde oss för att sätta diskbänken där eftersom man kan jobba där och se bakgården, och det överhäng på baksidan av ön tillåter trafikflödet att hålla sig utanför hennes arbetsområde, säger Barnhart.
Nytt slitstarkt vinylplankgolv i trälook förankrar rummet i värme och koordinerar med träfönsterkarmarna. Det rika träet toner kompletterar den nya marinblå ö-basen (Naval by Sherwin-Williams). Mjuka greige väggar (Agreeable Grey by Sherwin-Williams) lägger till en subtil varm motpol till det vita skåp (Pure White av Sherwin-Williams) och backsplash.
Det befintliga diskbänksfönstret (visas på det här fotot på höger) erbjuder utsikt över bakgården. "Jag gillade att behålla trätonen fönsterkarmarna eftersom det bidrar till att tillföra lite mer värme." säger Barnhart.
Golv: Adura MAX, Heritage Timber, Mannington


Baker's Dozen Kitchen Remodel | Apple Valley, MN | White Birch Design Med soffiten borttagen tog McDonald och Barnhart skåpet till taket, vilket maximerar förvaringen och minskar visuell röran. Dörrfronterna i Shaker-stil har platta svarta drag. De lådfronter har samma hårdvara i lite större storlek, "bara för att skapa en viss dimension och intresse", säger Barnhart.
Ön har en kvartsbänkskiva i marmorlook med dramatiska grå ådring på en mjuk vit bakgrund. Finslipad svart granit bildar omkretsbänkarna.
Galvaniserade stålhängen över ön har en modern bondgård se. Infällda LED-lampor i taket ger generellt belysning. Bänkstolar i modern stil i mitten av seklet klädda i karamellfärgat konstläder koordinerar med de varma trätonerna i utrymmet.
Hårdvara för skåp: Eurostångsdrag i platt svart, tum och tum, Cosmas; ö-topp: Calacatta Leon, ; hängen: in galvaniserat stål, Hinkley

Baker's Dozen Kitchen Remodel | Apple Valley, MN | White Birch Design En stor undermonterad diskbänk i rostfritt stål koordinerar med rostfri enkelgrepps neddragbar kran, stålhänget lampor och rostfria vitvaror.
Shotblandare: Broderick i Arctic rostfritt, Delta Kran

Baker's Dozen Kitchen Remodel | Apple Valley, MN | White Birch Design En 36-tums gashäll i rostfritt stål sitter under en europeisk stil 36-tums rostfri skorstensfläkt med femväxlad fläkt och LED belysning.
De 3 x 12-tums blanka keramiska tunnelbaneplattorna i backsplash har en vågig, delikat ojämn yta som lägger till textur och intressera. "Jag älskar den plattan för att den är en klassiker, men den också förstärker det klassiska utseendet på tunnelbanan, säger Barnhart.
Backsplash-bricka: Marlow Mist, 3 x 12 tum,
Baker's Dozen Kitchen Remodel | Apple Valley, MN | White Birch DesignA 30-tums ugn i rostfritt stål med dubbla väggar inkluderar konvektion bakning och en självrengörande funktion. Skåpet ovan har bricka avdelare för bakplåtar. En stor, djup låda nedan erbjuder plats för överdimensionerade föremål.

Baker's Dozen Kitchen Remodel | Apple Valley, MN | White Birch Design Denna bredare vy av kokzonen visar hur en bump-out ger spishällens framträdande plats. "Vi ville bryta upp den raka linjen och ge mer intresse för den väggen, säger Barnhart. "Den gör att spishällen känns mer speciell."
Bågfönstren, tidigare en del av matsalen, tar in frisk luft, naturligt ljus och utsikt över bakgården.

Baker's Dozen Kitchen Remodel | Apple Valley, MN | White Birch Design En breddad öppning till vänster om de dubbla ugnarna skapar bättre anslutning till allrummet. En 36-tums lättstädad rostfri stål fransk-dörr kylskåp står bredvid en inbyggd mikrovågsugn. Till vänster finns ett stort skafferiskåp. Och till vänster av det är en ny dryckesstation med överskåp i glasfront för visning av fina glasföremål. Cubbies lagrar vinflaskor. A dryck kyl sitter nedan. "De älskar att underhålla och hålla det var viktigt att komma ut ur arbetszonen, säger Barnhart. "Har alla drycker och förnödenheter i ett område är fantastiska."
Kylskåp: 800-serien fransk-dörr bottenmontering in lättstädat rostfritt stål, Bosch
Baker's Dozen Kitchen Remodel | Apple Valley, MNFöre FotoFöre: Denna planlösning visar layouten för det tidigare köket (överst i mitten). En smal ö skapade en tight konfiguration med begränsade sittplatser. Den oanvända matsalen (överst vänster) erbjöd potential att utöka köket och skapa bättre anslutning till allrummet. "Det där familjerumsutrymmet kändes oanvänd eftersom den var så avskuren från köket," Barnhart säger.
Baker's Dozen Kitchen Remodel | Apple Valley, MNEfter: Genom att ta bort väggen mellan kök och matsal och utökar köket till matsalens utrymme, McDonald och Barnhart skapade en luftigare layout med en stor ö. De också förstorade öppningen till allrummet för att förbättra flödet mellan dessa utrymmen. "De kan göra fler saker tillsammans nu inuti kök", säger Barnhart.


# Renovering av lägenhet