Veckans kök: Ny layout, massor av vita fräscha saker Upp

Ett tomt bo par och deras designer skapar en elegant kök som blandar modern teknik med klassisk stil

Joe och Maureen Topper hade olika oro över det existerande kök i deras traditionella koloniala hus i Pennsylvania som byggdes för 32 år sedan. Joe älskar att laga mat och tycker om teknik, så han ville alltid ha de senaste apparaterna. Maureen tog frågan med upplägget, vilket gjorde det svårt att underhålla när hon och Joe hade familjen över på middag.
Efter att ha renoverat köket för 19 år sedan står Topparna nu tomma Nesters, anlitade köksdesignern Dana Bacher för att hjälpa dem att skapa en mer användarvänligt och elegant kök som fungerar bättre förvaring, förstklassiga apparater och en starkare koppling till resten av interiören, trädgården på bakgården och poolen.
Saucon Valley ClassicFöre foto"Efter" foton av Brandon Kahler Photography
Kök i ett ögonblick
Vem bor här: Tomma infödare Joe och Maureen Topper
Plats: Saucon Valley, Pennsylvania
Storlek: Cirka 571 kvadratfot (53 kvadratmeter)
Designer: Dana Bacher från
Före: Otillräcklig belysning, bänkskivor i svart granit och en soffit som tryckte ned skåpen bidrog till en överlag mörk känsla. Den lilla genomgången endast över diskbänken retade en anslutning till vardagsrummet.
När paret renoverade köket för 19 år sedan ville de en induktionshäll med räckvidd, som de sätter till vänster om kylskåpet. På den tiden trodde de också att de ville ha det möjlighet till en gashäll, så de lade till en till ön. Men de upptäckte snart att de inte riktigt använde den, utan föredrog gasen grilla ute.
"Jag kände att vi ville förbättra relationen mellan de apparater och arbetsflödet i allmänhet", säger Bacher.

Saucon Valley ClassicEfter: Bacher flyttade diskbänken och genomgång, som hon förstorade, till vänster flera fot, skapa ett mer symmetriskt arrangemang på den väggen, bokad av kyl- och fryspelare. Till höger om kylskåpskolonnen till höger skapade hon en öppning som ansluter till vardagsrummet.
Bacher flyttade också platsen för den nya ön, som resulterade i bredare gångar. Tolv-tums djupa skåp lock varje ände av ön.
Det ljusare färgschemat inkluderar varmvita väggar (Simply White av Benjamin Moore) och vita infällda skåp med kronlister på topp för en nick till hemmets klassiska stil.
Täljstensbänkskivor med mycket blått och grått ger kontrast till alla vita. "Det var en av de bästa sakerna vi gjorde, och vi kunde inte vara nöjdare med det", säger Maureen.
Hudson skåp i dörrstil: ; bänkskivor:
Saucon Valley ClassicKlädda pallar i klassisk stil erbjuder bekväma sittplatser på ön.
Förutom den ljusare färgpaletten, flera nya infällda burklampor, tre klassiska polerade nickelglobshängen över ö och två vägglampetter ovanför diskbänken ger lager belysning.

Saucon Valley ClassicA nya 36-tums induktionsserie sitter under en stor vitmålad huva av trä. Glasfasade överskåp lättar upp väggen av vita skåp.
Saucon Valley ClassicA reflekterande vit keramisk baksida med vitt injekteringsbruk ytterligare lyser upp köket. "Hon ville inte göra någonting heller kinkig", säger Bacher om valet av kakel.
En rund handfat erbjuder en plats att tvätta händerna och grönsaker.
Saucon Valley Classic"På den gamla ön hade de en gammal fristående kaffebryggare, säger Bacher. "Joe gick till vitvaruaffär och såg den här inbyggda kaffemaskinen och sa, ’Vi måste ha en.’ " Ett utdragbart skåp nedanför lagrar kaffe muggar och tillbehör.
skåpsknoppar och drag: Top Knobs
Saucon Valley ClassicFöre FotoFöre: Det här fotot visar det föregående passera över diskbänken. "Den här öppningen verkade utan avsikt, säger Bacher. Men husägarna ville behålla en öppna för att de gillar att kunna titta utanför.
Saucon Valley ClassicEfter: Bredda öppningen och att flytta dess plats möjliggjorde en ännu bättre utsikt över trädgård och pool. Två panelfärdiga diskmaskiner flankerar förkläde-front diskbänk.
: Kohler; : Delta
Saucon Valley ClassicDenna panelklädda kylkolumnen till höger om diskbänken och den panelklädda fryspelaren till vänster om diskbänken tillåter Joe och Maureen att övervaka och kontrollera enheterna på distans via Wi-Fi.
Saucon Valley ClassicFöre FotoFöre:Det här fotot av det tidigare köket ö visar hur en sopkomprimator, gashäll, mikrovågsugn, diskmaskin och handfat trångt. En upphöjd bänkskiva mot den högra sidan av ön skapade en visuell barriär mellan kök och matplats.
Saucon Valley ClassicEfter: Den nya ön har en mer strömlinjeformad och sammanhängande design. En ångugn sitter på bortre änden, bekvämt mittemot kylskåpet, medan ett vin kylen i andra änden håller de som behöver en dryck borta från huvudarbetsflödet.
De översta lådorna rymmer silver och de två nedre lådorna pinnar för att organisera rätter. "De är nära diskmaskinen, så det är lätt att lasta av och ställa disken, säger Bacher säger.
Saucon Valley ClassicThe vinkylskåp under bänken har utdrag i bokträ och styr ljusexponering, luftfuktighet och temperatur.

Saucon Valley ClassicA nya skrivbordsdelen sitter på allrumssidan och har skåp som kompletterar köket.
Saucon Valley ClassicBacher designad bifold infällbar dörrar som gör att topparna kan dölja papper och skräp när gästerna är över.
Saucon Valley ClassicDenna bredare vy visar en titt in i kök och all förvaring ovanför och under pass-through.
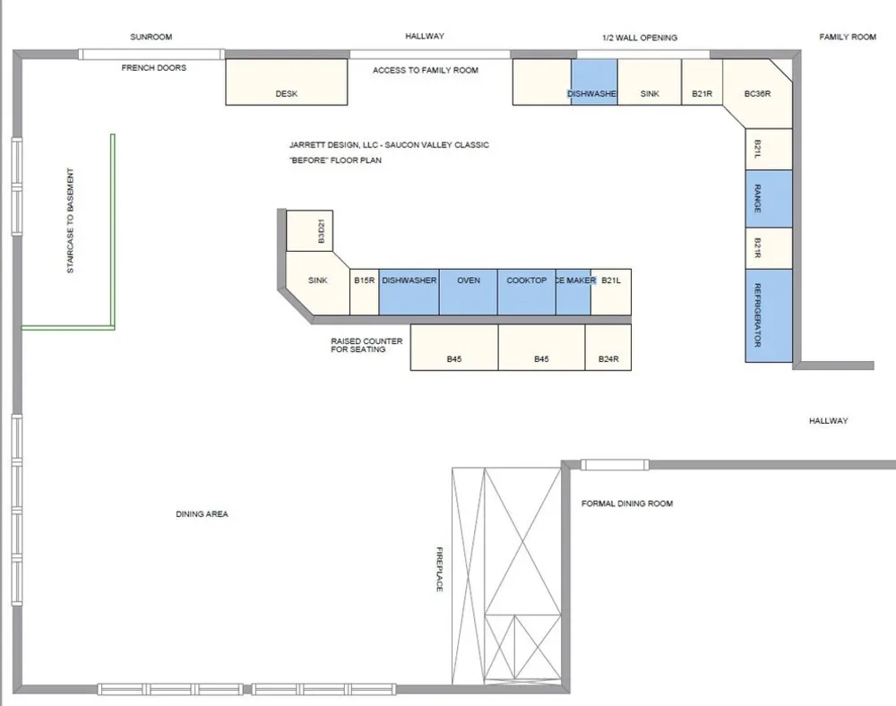
Saucon Valley ClassicFöre fotoFöre: Denna planlösning av det tidigare köket visar begränsningarna för layouten. "Lägg märke till hur lite lagringsutrymme det fanns eftersom vitvarorna upptog så mycket av köksfastigheten, Bacher säger.
Saucon Valley ClassicEfter: Den förbättrade planlösningen gör köket mycket mer användarvänligt. "Det är så ljust, så välkomnande och ett roligt utrymme att spendera tid i", säger Maureen.


# Renovering av lägenhet