Bir tasarımcı, akıllı depolama ve hazırlıkla her santimi en üst düzeye çıkarır emekli bir catering şirketi ve eşi için yer California
Fotoğraflar: Bir Bakışta Mutfak Kim kullanıyor: Emekli bir catering şirketi, eşi ve ikisi kediler Yer:San Jose, Kaliforniya Boyut: 125 fit kare (12 metrekare) Tasarımcı: Samantha Hillstrom Bu San Jose, California çifti büyük bir kariyer yapmaya karar verdi. yaşam tarzı değişikliği - bir evden daha küçük bir şehir evine geçin yıllarca kiralık mülk olarak sahip olmuşlardı. Taşınmadan önce, tasarımcı Samantha Hillstrom, birimin çoğunu yeniden şekillendirmelerine yardımcı oldu. "Emekli bir catering şirketiydi ve o hâlâ çalışıyordu" diyor. ev sahiplerinden. "Banyo tadilatını üstlendi mutfak onun için en önemli alan iken benimle çalışmak için." Bu, kalan basit bir mutfak tadilatıydı. orijinal ayak izi içinde. "Mutfak 125 metrekareydi, ve konağın bu katının sınırlı boyutu nedeniyle ve yapısal sorunlar, genişletecek yerimiz yoktu," tasarımcı diyor. "Dolayısıyla, depolamayı en üst düzeye çıkarma konusunda gerçekten akıllı olmamız gerekiyordu ve hazırlık alanları Bu, tezgah dağınıklığını en aza indirmeyi ve her şey için bir yere sahip olmak." Oda, modernliği birleştiren temiz bir geçiş görünümüne sahiptir. minimalist hareketler - kuvarsı yerden uzatmak gibi gibi geleneksel özelliklerle backsplash üzerine tezgah üstü Shaker tarzı dolap.
Önce FotoğrafÖnce:Hillstrom'un diplomatik olarak ifade ettiği gibi, mevcut mutfak "terbiyeli" idi. dolaplar yoktu depolamayı en üst düzeye çıkarmak için özel olarak donatıldı ve estetik yorgun. Sağdaki duvar bloklu kiler deposuyla doluydu. ve açık yemek-oturma alanından manzarayı itici hale getirdi. Ve dolapların kurulma şekli, odanın içinde boşa harcanan alan üç köşe. Hafif ve Havadar Geçiş Stil Hillstrom, alanı modernize etmek ve daha parlak hale getirmek için önerdi beyaz ve griden oluşan açık renk paleti. ' Pussywillow'u kullandı dolapta boya ve her ikisine de cam dolap kapakları eklendi mevcut pencerenin kenarları, mutfağı daha hafif hissettiriyor ve daha açık. "Müvekkilim için harç hatlarını en aza indirmemiz önemliydi çünkü her şey burada kusursuz bir görünümle ilgiliydi" diyor. Bu yüzden cilalı kuvarsı tezgahlardan yukarıya doğru uzattı. backsplash ve pencere çıkıntısının karşısında - "bizim olduğumuz tek yer güçlü damarlanma deseniyle drama ekledi" diyor. O da sarkıt lamba çifti ile biraz yetenek getirdi, yönlü tohumlanmış cam ve birantiqued fırçalanmış nikel. Odadaki savurganlıklardan biri, eski catering şirketinin bir musluğuydu. gerçekten beğendim. Aşağı açılan saten nikel parçası, Michael Berman Gotham serisi. Lavabo granit bileşik. Martı Aydınlatması; Truffle'da hassas eviye, ; Britanya kuvars: ; kare çubuk fırçalanmış sateni çeker:
İşte daha yakından bir bakış kuvarsın güzel damarlanma deseni. Bir Kişiye Uygun Pişirme Alanı Profesyonel Aşçı Doğru aralığı seçmek önemliydi Eğlendirmeyi seven profesyonel şeflerin önceliği karısı. Wolf'tan 30 inçlik bir gaz aralığı seçti. Hillstrom için en iyi depolama stratejilerini bulmak için onunla birlikte çalıştı. aralığın yakınında pişirme ihtiyacı var ve yeterli hazırlık olduğundan emin olun etrafındaki boşluk.
Akıllı Depolama Çözümler Yemek pişirme gereçleri için aralığın yanına bir çekmece yerleştirdi. bir bıçak bloğu dahil. Aralığın karşı tarafında ise yağ, sirke ve baharat depolamak için başka bir çekmece. iki taban derin çekmeceli dolaplarda tencere ve tavalar bulunmaktadır. Kabin ekleri:
Tasarımcı, Daha şık ve daha işlevsel hale getirmek için kiler duvarı. Bu mikrodalga fırının altındaki cihaz garaj kapısı küçük cihazlar, tezgah dağınıklığını en aza indirir. Bir diğer önemli artış depoda, Hillstrom'un bulunduğu odanın üç köşesinde iki yarım ay ve bir Lazy Susan kurdu. Cihaza ek olarak Garaj, bu eski kiler duvarı yerleşik bir mikrodalga içerir ve Fransız kapılı bir buzdolabı.
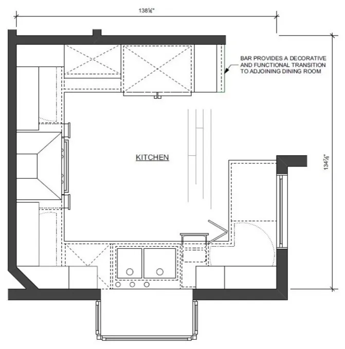
Girişin dışındaki bu alan mutfakta kurulum için kullanışlı olan ek hazırlık alanı vardır Bitişikteki yemek alanı için servis gereçleri ve yiyecekler. Hillstrom eklendi içine daha güzel bir görünüm oluşturmak için bir şelale tezgahı mutfak. Önceden, mutfaktaki mevcut muşamba farklıydı döşemenin geri kalanından. boyunca yeni katlar şehir evinin birinci katı, görünen lüks vinil karodur. sert ağaç gibi. Bu yüzey dayanıklıdır - çizikleri kaldırabilir çiftin iki kedisinden ve su ve yemek dökülmelerinden. Birlikte Altındaki mantar altlık, gerçek ayakkabıdan daha yumuşaktır. parke. Plus HD'den Füme Rustik Çam döşeme koleksiyon: Geliştirilmiş Giriş Hillstrom açıklığı mutfağa doğru genişletti ve karanlık, baş döndürücü kiler dolabının olduğu yerde göz alıcı vurgu olmuştur. Güzel yeni barın yemek alanının yanındaki konumu ve şefin yolunun dışında olması uygundur. Ve estetik olarak mekanlar arasında güzel bir geçiş sağlar. Barın üzerinde, açık bir cam dolap kapağı, cam eşyaları korurken sergiliyor tozdan. Barın altında bir şarap rafı var. Bulut Beyazı duvar boyası: Şununla vurgulanan cam mozaik karo dolap altı aydınlatma bara özel bir hava katıyor ters sıçrama "Müşterilerim bu döşemeyi sevdi çünkü şekilleri aşağıda saklanan şarap şişelerine benziyor," diyor Hillstrom. Milk'te Waves backsplash döşemesi: Önce:Yan kiler dolabının sağ üst kısmı çirkindi. Ve açılı duvarın önünde açılı üst dolap, sol alt, ev sahiplerinin favorisi değildi. Sonra:The düzen iyi çalıştı ve önemli ölçüde değişmedi, ancak ince ayarlar genişletilmiş giriş, bar ve köşeli dolaplar gibi açılı duvar cephesi estetik olarak büyük fark yaratmıştır. Cihaz garajı, köşe dolabı gibi akıllı depolama ekler, tencere ve tavalar için derin çekmeceler ve dolap çekmeceleri mutfağın işleyişi büyük ölçüde iyileştirildi. Paket Servisler
Karanlık bir mutfağı cam dolap kapaklarıyla aydınlatın.
Eksiksiz bir görünüm için bir tezgah malzemesini yukarıya doğru uzatın. bir backsplash olarak duvarlar.
Yemek pişirirken elinizin altında olması gerekenleri düşünün ve planlayın buna göre aralık çevresinde depolama.
Lazy Susans ile köşe dolap alanından en iyi şekilde yararlanın, yarım aylar veya diğer dolap çekmeceleri.
Tasarımcınızla mutfak zemininin nasıl yapılacağı hakkında konuşun ayaklarınız ve bacaklarınız için daha yumuşak.
Ne zaman iyi yerleştirilmiş bir içecek alanı eklemeyi düşünün? mutfağınızın tadilatını planlamak.