Haftanın Banyosu: Dalgalı Fayans ve Japon Banyosu küvet

Bu spa benzeri bodrum banyosunda bolca sıcak tik ağacı var rahatlatıcı bir antrenman sonrası havası için

Bir Maryland'deki yenilenmiş bodrum katında egzersiz sonrası spa sığınağı çift, işlevsel bir tasarım bulması için tasarımcı Meghan Browne'ı işe aldı. Zen benzeri bir atmosfere sahip düzen. Browne, yerini değiştirerek yanıt verdi ayak izini genişletmek için başka bir alana çamaşır yıkama tesisleri banyo, daha sonra bir tik de dahil olmak üzere çok sayıda dalgalı karo ve tik kullanıldı Japon tarzı derin küvet.
Chevy Chase, MD'de İşlevsel DüzeltmeFotoğraflar: Keith Miller Keiana Fotoğrafçılık
Bir Bakışta Banyo
Burada kim yaşıyor: Üniversite çağında bir kızı olan bir çift
Yer: Chevy Chase, Maryland
Boyut: 106 fit kare (9,8 metrekare)
Tasarımcı: Meghan Browne of
Browne çamaşırhanenin yerini değiştirdikten ve yeni banyonun düzenini görünce soldaki boşluğu fark etti makyaj masası, tik ağacından bir küvet için mükemmel olurdu. Aile Bodrum katında bir spor salonu var ve sonrasında ıslanma fikrine bayıldım. bir egzersiz. Ahşap, stil için bir atlama noktası sağladı yön. Küvetin üzerindeki tik niş, ortama görsel sıcaklık katar. dalgalı kiremitle sarılmış duvarlar.

Chevy Chase, MD'de İşlevsel DüzeltmeBrowne, kuvars ile çevrili grafik yer karoları, kullanılan aynı kuvars şelale tezgahı için. "Koşucuyu tamamen kullanmak yerine zemini kaplamak, kiremitin bozulmadan öne çıkmasına izin verdi çok meşgul," diyor.
Kıyafetiyle yakından eşleşen bir makyaj rengi seçti. kiremit ve tik ağacı daha fazla göze çarpsın.

Chevy Chase, MD'de İşlevsel DüzeltmeBasit kremsi beyaz metro makyaj masasının arkasına dikey olarak istiflenmiş bir desende döşenen karolar çizgiler temizlenir ve yine diğer malzemelerin çizilmesine izin verilir ilginin çoğu.
Chevy Chase, MD'de İşlevsel DüzeltmeEv sahipleri az önce bu tadilata başlamadan önce İsrail'e yaptığı bir geziden döndü, ve denizaşırı otellerde gördükleri tüm dalgalı karolara bayıldılar. Browne, duşta bu dalgalı beton karoyu yaratmaya yardımcı olmak için kullandı. sahiplerinin istediği sakinleştirici, Zen benzeri sığınak.
Tik zemin, bir sehpanın üzerine oturan çıtalı panellerden oluşur. geleneksel drenaj tavası. Sahipler temizlemek için panelleri kaldırabilir altına gir ya da drenaj.

Islatma küveti:
Haftanın Banyosu: Dalgalı Fayans ve Japon KüvetiÖnce FotoğrafÖnce:Orijinal bodrum Banyo sadece bu küçük sudan ibaretti. dolap.

Chevy Chase, MD'de İşlevsel DüzeltmeSonra:Browne bir çağdaş tarzda duvara asılı lavabo ve duvarları saran yeni makyajın arkasında kullanılan aynı kiremit. Fayansı bir ile kapattı tasarımı tasarımın geri kalanıyla birleştirmek için tik ağacı şeridi banyo.
Chevy Chase, MD'de İşlevsel DüzeltmeYeni bir cep kapısı bağlanır banyonun geri kalanıyla birlikte güncellenmiş klozet.
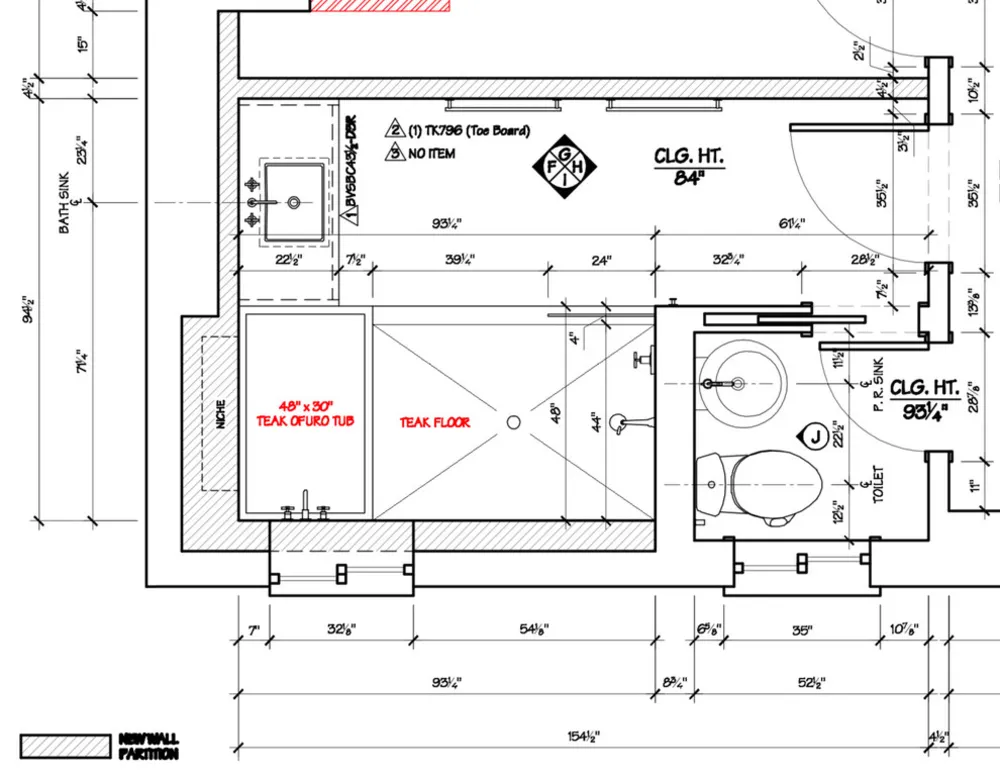
Haftanın Banyosu: Dalgalı Fayans ve Japon KüvetiBu ayrıntılı kat planı, yenilenmiş banyonun düzenini gösterir, klozet sağ altta ve derin küvet sol alt.



# Daire tadilatı