Haftanın Banyosu: Klasik Tarz Sıkışık 1920'leri Canlandırıyor Kalıntı

Massachusetts ana banyosunun boyutu iki kattan fazladır uzun zamandır beklenen bir tadilattan sonra


Eski Bir Dünya Bulmacası"Sonra" fotoğrafları:
Bir Bakışta Ebeveyn Banyosu
Kim kullanıyor:Bir çift
Yer:Massachusetts
Boyut:105 fit kare (9,8 metrekare)
Tasarımcılar:Mark Haddad ve Susan Cracraft arasında
Bu ana banyo tadilatı uzun zaman önceydi bir çift boş nester için. 1920'lerinde yaşadılar Yeni Yıllardır İngiltere Colonial evi ve çoğunu yenilemişti, sıkışık, modası geçmiş orijinali kullanmaya ve paylaşmaya devam ederken üst kattaki banyo.
Interiology Design'ı işe aldıklarında çiftin bir banyoları için ne istediklerine dair oldukça net bir görüş revizyon Odayı kabaca genişletmenin yanı sıra 40 metrekarelik ayak izi, ayrıca daha zarif, neredeyse yersiz hissetmeyecek zamansız alan 100 yıllık ev."Estetikleri ve tarzları gerçekten geleneksel New England evini yakalamaktı," tasarımcı Mark Haddad diyor.
Duvar boyası: Yavru Keçi Beyazı, Donald Kaufman
Fieldmont ProjesiFotoğraftan ÖnceÖnce: Yenileme orijinal olmadan önce kabaca 8'e 5 fitlik banyo eve. "Son derece küçüktü ve umutsuzca bakıma ihtiyacı vardı. güncelleme, "diyor Haddad. Plan, bitişikteki bir yeri devralmaktı. alanı genişletmek için gömme dolap.
Ev sahiplerinin değişmeye istekli olduğu birçok özelliğe rağmen, korumak istedikleri birkaç unsur vardı. "Biz ayak izi içinde çalışmakla ve herhangi bir yere dokunmamakla sınırlıdır. pencereler. Ayrıca tuvaleti mevcutta tutmamız gerekiyordu. konum ve bunun için salon kapısının girişini tutmak zorunda kaldık banyo," diyor Haddad.
Yenilemeye hazır mısınız?
An Old World PuzzleSonra:Yenileme banyonun boyutunu iki katına çıkardı. Beyaz, mermer ve cilalı nikel yüzeyler zarif ve geleneksel görünüme katkıda bulunur. ev sahipleri peşindeydi.
Tuvalet, pencereler gibi orijinal yerinde kaldı ve koridor kapısı. Yeni bir yerleşik dolap, tuvaleti korur ve tutar tuvalet kağıdı ve diğer ihtiyaçlar. Kabine aynı zamanda ev sahiplerinin istemediği banyo radyatörü kaldır. Bu, ev sahiplerinin vizyonunun nasıl yardımcı olduğuna bir örnektir. tasarım ekibinin rafine ve konfor ve yaşanabilirlik için geliştiriyor.
Kabin ve döşeme boyası: DKC-67, Donald Kaufman
Eski Bir Dünya BulmacasıTuvaletin karşısında tek bir makyaj masası vardır. Tasarım ekibi, çift makyaj masası ekleme fikrini önerdi veya iki bireysel gösteriş, ama bu, bunu kaybetmek anlamına gelirdi koridora açılan kapı. Haddad, "Bunun bir endişe olmadığını hissettiler" dedi. çiftin eklemek yerine kapıyı tutma kararından bahsediyor başka bir lavabo. "Hiçbir zaman aynı anda banyoda olmazlar. zaman."
Özel makyaj masası özellikleri Bianco Carrara mermer tezgahlar ve derin açılır kapanır çekmeceler. Cömert boyut ecza dolabı daha da fazla saklama alanı sunar.
İlaç dolabı:

Eski Bir Dünya BulmacasıCarrara mermer mozaik karo kaplar zemin, alana daha fazla desen ve doku ekleyerek. "Biz mermer mozaik arıyorum" hem estetik hem de çatlama veya ayrılma riskini azalttı (eski bir evin Haddad, düz olmayan zeminlerin neden olabileceğini söylüyor. ev sahipleri Bu modeli görür görmez seçtiler. "Asla yılmadılar" diyor.

Eski Bir Dünya BulmacasıThe Genişletilmiş banyo, daha büyük bir duş ve ayaklı ıslatma küveti. Haddad, "Her zaman bu tür bir küvet istemişler," diyor. Ve ayaklı bir küvet istemeseler de, sonunda dökme demirden (beyaza boyadıkları) birini seçerek ev için daha otantik hissediyorum. Yeni duş küvetin yanındaki köşe, gambrel çatının yanında.
Tasarım ekibi, çeşitli kat planlarıyla oynadı ve ev sahipleri, maliyet tasarrufunu birleştirdiği için bunu seçti en iyi tasarıma sahip fikirler (tuvalet ve pencereleri hareket ettirmemek) dilek listesindeki öğeler. "Çok fazla açık alan seviyorlar. hareket etti ve bu da bunu sağladı," diyor Haddad.
Duvar ve duş karosu: Carrara mermeri; duş armatürleri: ; küvet: Beardsey 59 inç, ;
Fieldmont ProjesiFotoğraftan ÖnceÖnce: ebeveyn yatak odasının solda görülen banyoya açılan bir kapısı ve gömme dolap, sağda. Ev sahipleri daha iyi olmak istedi banyoyu yatak odasıyla bütünleştirin.
Eski Bir Dünya BulmacasıSonra:Ebeveyn yatak odası ve banyo şimdi yatak odasındaki yeni bir giyinme alanı (burada gösterilmektedir) aracılığıyla bağlanın. Tasarım ekibi, giyinmek için yatak odasından alan ödünç aldı. alan, orijinal gömme dolabın tüm meydanına ithaf edilmiştir. banyo görüntüleri.
Önceki görüntüdeki gardırobun bulunduğu duvar artık cep banyoya açılan kapı, giyinme alanı açık yatak odası. "Eski gömme dolabı ana odaya dahil etmek Banyo en iyi karardı. hissini yaratmamıza izin verdi. güncellenmiş bir ana süit," diyor Haddad.
Her dolapta 7 doğrusal ayak depolama alanı bulunur. Tüm giyinme alanı 66 inç genişliğindedir.
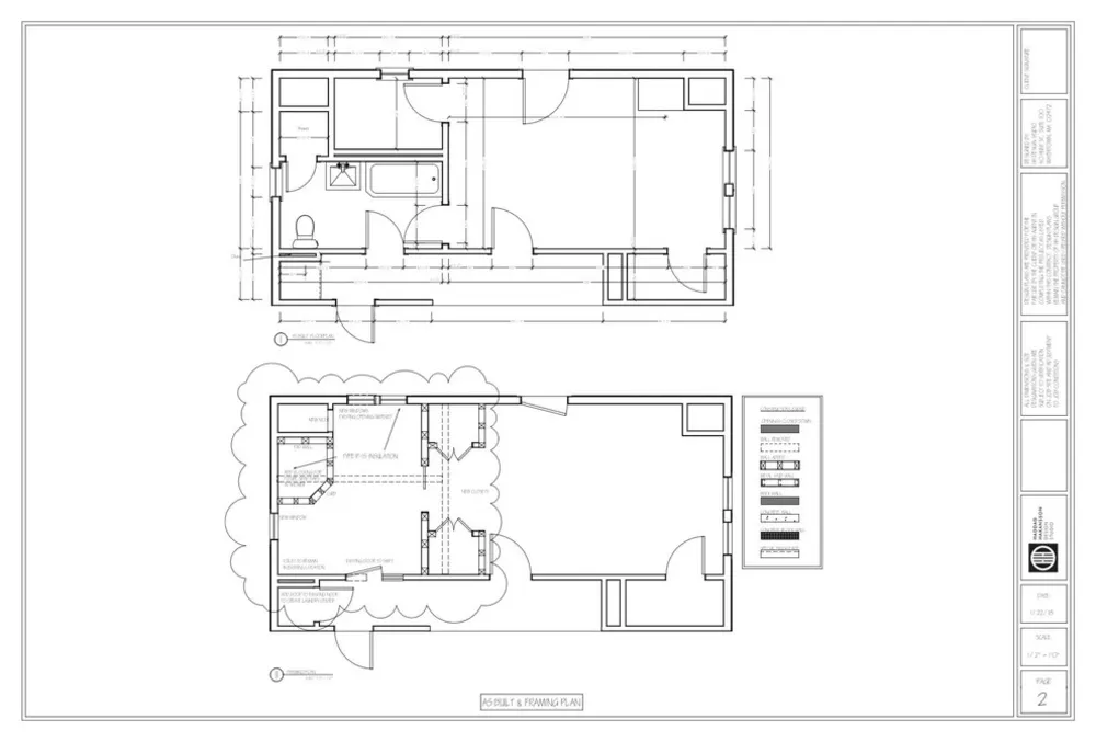
Fieldmont ProjectBu çizim tadilattan önceki banyo kat planını gösterir, üst, ve sonra. "Önceki" planında, ayrı ayrı görebilirsiniz yatak odasından banyo ve dolaba giriş. bu Yenilemeden önceki banyoda küçük bir duş kabini bulunmaktadır. küvet, lavabo ve çok az şey.
Yenileme sonrası, banyonun tüm alanı nasıl ele geçirdiğini görebilirsiniz. yatak odasını birbirine bağlayan yeni giyinme alanı ile dolap alanı ve banyo. Derin küvet, dolabın kullanıldığı köşeyi kaplar. olmak, köşede hemen yanında duş ile.

Genel yüklenici: Steve Simms
Dolap ve makyaj masası:
Döşeme:



# Daire tadilatı