Haftanın Banyosu: Tik Mobilya ve Universal Tasarım
Ebeveyn banyolarının kapsamlı bir şekilde yenilenmesi, bu Seattle çifti yerinde yaşlanacak
Fotoğraflar: Bir Bakışta Banyo Kim kullanıyor: Yerinde yaşlanmak isteyen bir çift Yer: Seattle Boyut:82 fitkare (7,5 metrekare) Tasarımcılar:(iç tasarım)'dan Jen Kowalski ve Matt Moisan of (inşaat ve evrensel tasarım) Bu çiftin Seattle'daki kalıcı evi, New York'ta zemin kattaki bir apartman dairesi. Puget Sound ile şehir merkezinin güzel bir kentsel sahil bölgesi, caddenin karşısındaki dönme dolap ve feribot terminalleri. onlar ne zaman evrensel kullanarak ana banyolarını yeniden şekillendirmeye hazırdı tasarım ilkeleri, Potter İnşaat adını verdiler, bir firmaya 2015'te yeniden modellendiklerinde Servista aracılığıyla bulundu. tadilat, tasarım profesyonelleri çiftin tarzını iyi tanıdı. "Eşsiz ahşabı, el işçiliğini ve toprak tonlarını seviyorlar ve dokular," diyor yerinde yaşlandırma sertifikalı Matt Moisan uzman ve Potter İnşaat'ta genel müdür. "Aynı zamanda oldukça minimalistler."
Zamansız Malzemeler Ev sahiplerinden biri çok ilgili. "O hevesli bir marangoz ve tik makyaj masası ve rafları kendisi yaptı, bu da tasarruf sağladı bütçe," diyor Moisan. Bütçe tasarrufu sağlayan başka bir kişi, toz odalarından fazla fayans ve tezgah malzemeleri yeniden şekillendirin. Tezgahlar Meridian Satin kuvarsittir. Doğal taş, tik ağacının zengin ahşabını güzel bir şekilde oynar. Tek kollu musluk kulpları minimalist bir estetiği korur. doğal malzemelere odaklanır. Önce FotoğrafÖnce:Orijinal banyo kötü döşenmişti çıktı ve erişilebilir olması için tam bir yeniden yapılandırmaya ihtiyaç duydu hareketlilik sorunları olan biri. Ayrı bir şekilde doğranmıştı. klozet ve duş kabini alanı ve bir uzay domuzu vardı. ev sahiplerinin kullanmakla ilgilenmediği küvet. bu banyonun 82 metrekarelik kapladığı alan aynı kaldı, ancak bölme duvarlarını ve küveti kaldırmak, onlara tekerlekli sandalye ve yürüyüşçüler için erişilebilir oda. Önce FotoğrafEvrensel Tasarım İlkeleri Önce:Bu kat planı bir öncekiyle güzel bir şekilde örtüşüyor Fotoğraf. Sol üst köşede küçük bir duş kabini vardı. Ve tuvalet ve duş arasındaki bölme duvarları değildi yerinde eskitme için pratik. Sonra: Duvarlar ve küvet kaldırıldığında, bir alan yaratmak için alan vardı. geniş duş kabini, solda ve ek depolama alanı, sağda. bu duşa kaldırımsız giriş tuvalete bakmaktadır. Önemli Ölçümler
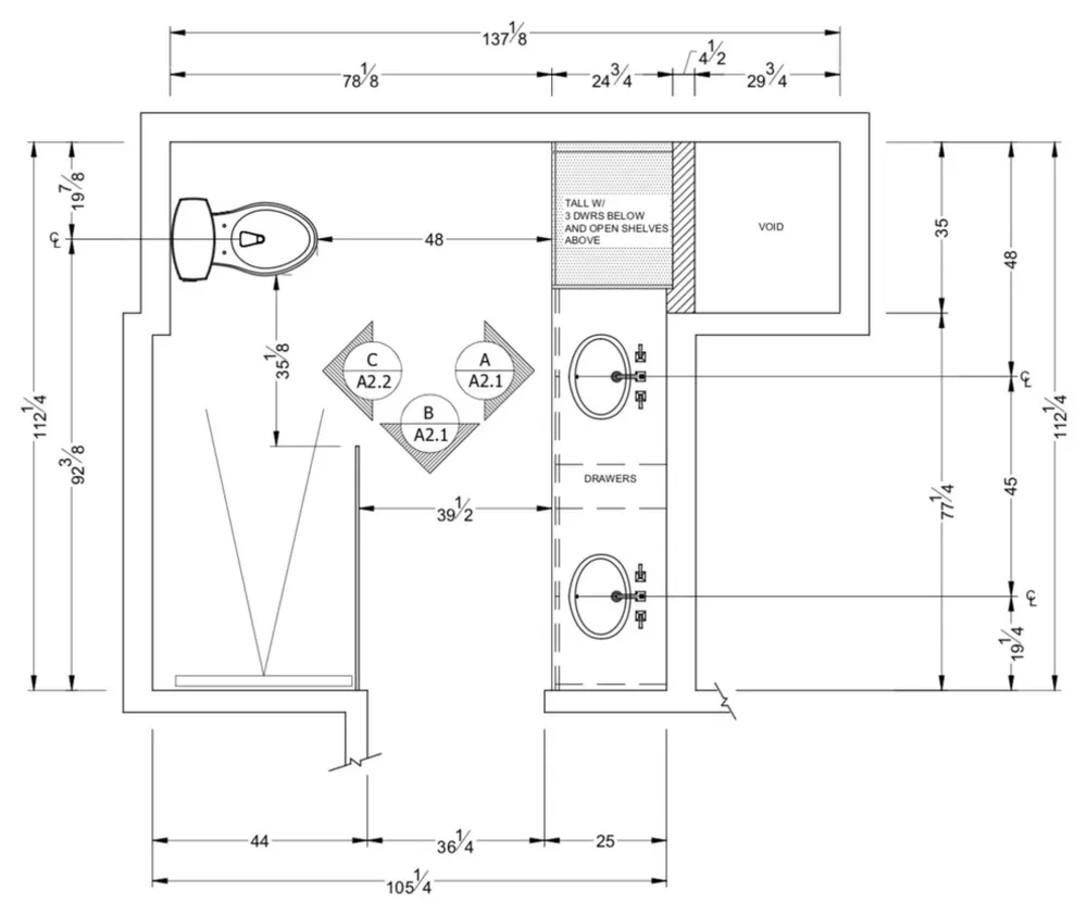
Aralarında 39½ inç boşluk var duş ve makyaj masası.
Tuvalet 17 inç yüksekliğindedir.
Tuvalet ile tuvalet arasında 48 inç boşluk vardır. makyaj ve tuvalet ile arasında yaklaşık 35 inç duş.
Duş kabini 44 inç genişliğindedir.
Tezgahlar 33 inç yüksekliğindedir.
Bol ışık başka bir şeydir Bir banyoda evrensel tasarımın önemli bir yönü. Onlar gömme ışıklar, iki adet dört ampullü dikey aplik ve bol miktarda ışık sağlamak için makyaj masası aydınlatmasının altına monte edin. Tümü Armatürler, parlaktan ayarlayabilmeleri için dimmer üzerindedir. sabah makyajı ışığı kısmak için gece yarısı-banyoya yolculuk hafif. Lavabolar duvara monte, seramik ve ADA uyumludur. altlarında tekerlekli sandalyeler ve yürüteçler için erişim. ev sahibi lavaboların altına çıkarılabilir raflar inşa edildi (ilk fotoğrafa bakın) artık ekstra depolama için kullanabileceklerini ve gerekirse gelecek. Çiftin tekerlekli sandalye kullanan iyi bir arkadaşı kontrole yardım etti. ev sahibi makyaj üzerinde çalışırken makyaj açıklıkları.
Önce FotoğrafÖnce:Duş kabini küçüktü ve bordür — yerinde yaşlanmaya elverişli değil.
Tasarım ekibi ekledi ev sahiplerinin yaşlanmasına izin verecek çeşitli özellikler yer:
Kaldırımsız giriş
Bakıcının bakabileceği kadar büyük durak boyutları yardıma ihtiyaç duyulduğunda uyum sağlayın
Kaymaz karo
Gelecekteki tutma çubuğunu desteklemek için duvarlarda kontrplak engelleme kurulum
Elde kullanılan duş başlığı
A kadar destekleyebilen, duvara monte katlanır tik ağacından bank 500 pound
Bir kişinin erişebileceği kaldırımsız bir duş yaratmak tekerlekli sandalye veya yürüteç, beton zeminli bir apartman dairesinde zordu. Drenajın düzgün çalışması için yeterli yüksekliği oluşturmak üzere, tasarımcılar banyoda zemin kalınlığını artırdı ve yatak odası algılanamaz bir miktar, ancak izin vermek için yeterli drenaj için duşta ihtiyaç duydukları eğim. Duş duvarları, duşla aynı kuvarsitle kaplanmıştır. tezgahı. Malzeme paletini sınırlamak, uyumlu bir yapı oluşturdu. çiftin sevdiği minimalist tarza bakın. duş zemini fayanslar Pen Eco-Stone'dur. Doğal dokulu porselendir. damarlarındaki renkleri alan taş görünümü duvarlar ve kaymaz.