Servista Turu: Finlandiya'nın Vahşi Doğasında El Yapımı Bir Ev

Alman öğrenciler, 4 odalı bir ev inşa ederek eğitimlerini değerlendirdiler ev, eskizden ikmal yoluna, sauna soba borusuna

Üzerindeyken Finlandiya'nın bakir doğasında tatil, mimarlık öğrencisi Timm Bergmann ve kentsel tasarım öğrencisi Jonas Becker'in aklına bir fikir geldi: Neden hemen oraya küçük bir ev inşa etmiyorsun? Enerji dolu ve içine koymaya can attıkları teorik bilgilerle donatılmış pratik, Alman ikilisi büyüklerden uzakta bir sığınak yarattı şehir. Her şeyi kendileri yaptılar - planlar yapmak, inşa etmek malzemeleri siteye getirmek ve her ayrıntıyı işlemek için bir yol. Bu süreçte paha biçilmez bir inşaat deneyimi kazandılar. bu onların kariyerlerinde çok işine yarayacaktır.
The CabinFotoğraflar yazan
Bir Bakışta Ev
Burada kim yaşıyor:
'den Timm Bergmann ve Jonas Becker Yer:Lavia, güneybatı Finlandiya
Boyut:280 fit kare (26 metrekare) artı bir ek bina
Bergmann ve Becker evi bir gölün biraz gerisinde bir tepenin üzerine inşa ettiler. daha seyrek nüfuslu bölgelerden birinde gelişmemiş orman arsası Finlandiya'nın bazı bölgeleri. "Elektrik ve su yoktu. yol yok olay örgüsüne Toprak analizi yaptık ve projesini çizdik. sonuçlara göre, mimar Jan gözetiminde Kampshoff," diyor Bergmann.
The Cabinİki öğrenciler önce ayağa fırladılar, vitesleri teoriden teoriye kaydırdılar inşaat ve Fince hakkında çok şey öğrenmek ve pratik yapmak yol boyunca izin süreci. "Annemin bir arsası var. Yakınlarda, "diyor Bergmann. "Yaptığımız alanı kiraya verebildik. bir jeton miktarı için inşa etmek istedi. Ancak yine de yapmak zorundaydık elbette bir inşaat başvurusu gönderin.
Proje için hayat birikimlerini bir araya topladılar ve planlarının ilk taslağı, lisans eğitimleri olarak hizmet etti. tez.
Kabin"İkimiz de altıncı dönemimizde [eğitimlerinin yarısında] ve aranıyordu her şeyin olup olmadığını görmek için öğrendiğimiz tüm teoriyi test etmek gerçekten üniversitede öğrendiğin gibi çalışıyor," diyor Bergmann.
Yaklaşık 14.000 $'lık sıkı bütçelerine bağlı kalmak ve aynısını elde etmek mümkün olduğunca deneyim, öğrenciler neredeyse planladı ve inşa etti her şey kendileri. "Çatıda kendin oturuyorsun, bir soba borusunu tavandan geçirmek ve ardından çatıyı kapatmak - işte bu başka bir şey. Bunun yerine bu süreçleri deneyimlemek istedik. onları sadece teoride planlamaktan ibaret," diyor Bergmann.
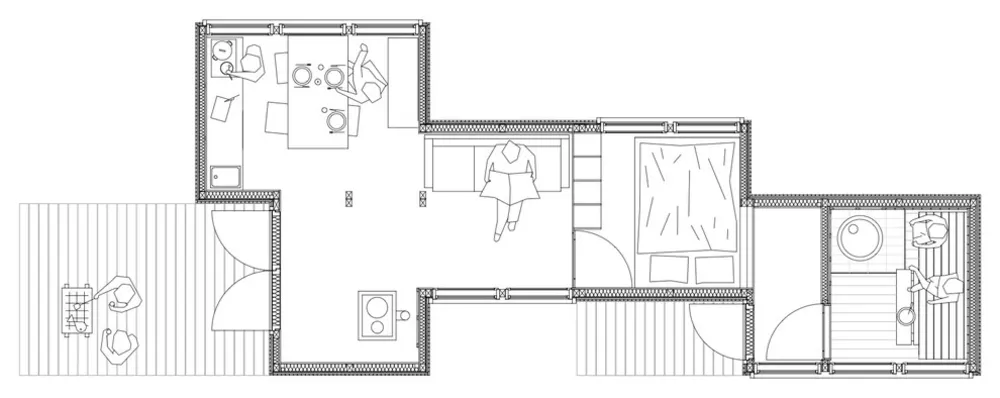
Finlandiya'da KulübeTasarımları karmaşıktır ancak basit, minimalist etki. "Ev kademeli, böylece bir her pencereden farklı bir görünüm," diyor Becker. Dörtlü biraz ofset odalar 280 fit kareye yayılmıştır ve bir duvarla çevrilidir. etkileyici doğal manzara.
Fernab der Zivilisation: Finlandiya'da Ein kleines HolzhausThe Odalar kullanım kolaylığı sağlayacak şekilde düzenlenmiştir. Soldaki mutfak, bir yatak odasına ve saunaya açılan küçük oturma odası. bu odalar aynıdır ancak birbirlerine göre döndürülmüştür.
"Her zaman en yüksek tarafta bir duvar ve bir çift pencere vardır. diğer tarafta Bu pencerelere 'yazlık' da denir. Finlandiya'da pencereler. Çift camları ile tamamen [içeride sıcaklığı tutmak için] yeterliydi ve kolayca masif ahşap çerçeveler sayesinde çalışın," Becker diyor.
KabinÖğrenciler planlarını defalarca yeniden incelediler inşaat sürecinde. "Bazen sadece fikirler ve değişiklikler İnşaat başladıktan sonra yukarı çık," diyor Becker.
"Her şeyi kendimiz inşa ettiğimiz için sadece maliyetleri düşürmekle kalmadık, aynı zamanda ayrıca yol boyunca değişiklikler yapabildiler. Sonuç olarak, biz terası genişlettik, çatıyı kendimiz yaptık sonuçta — ilk planın aksine - ve soba boruları yaptı kendimiz," diyor Bergmann.
The Cabinİkili kurulum bir zamanlar Bergmann'ın büyükanne ve büyükbabasının bulunduğu evde bir ana kamp yaşadı. Elektriği ve suyu olduğu için onlara ikramda bulundu. evlerinin birçok parçasını prefabrike etmek için altyapı hava durumuna bağlı olmadan mümkün olduğu kadar.

Kabin"Ev modüler bir çerçeveye sahiptir. toplamda biz 17 kare ahşap çerçeve kuruldu. Kontrplak levhalar [onda yedi bir inç kalınlığında] sağlamlık ekler ve birbirlerine bağlanırlar diğer ahşapla diğer," diyor Bergmann.
Ancak, alana herhangi bir yol veya yol çıkmadığından, öğrenciler kendilerini ve malzemelerini elde etmenin bir yolunu bulmaları gerekiyordu. ciddi bir şekilde inşa etmeye başlamadan önce mülk. "İhtiyacımız vardı yapı malzemesini taşımak için rıhtım benzeri bir yol bataklık araziden şantiyeye kadar," diyor Bergmann.
Böylece ilk kaldıkları sürenin ilk dört haftasını binada geçirdiler. yaklaşık 650 fit uzunluğunda ahşap bir yürüyüş yolu. Her birini taşıdılar ana kamptan bir traktörle yaklaşık 2 mil uzakta Yaya olarak son 650 fiti yapmadan önce orman yolu.
KabinBu yorucu ve zaman alıcı bir işti. "Biz neredeyse her şeyi kendi başımıza inşa ettik ama Almanya'dan arkadaşlar geldi zaman zaman inşaat aşamalarında bize yardımcı olmak için dışarı," diyor Bergmann. Karşılığında, gönüllüler ödüllerini aldılar. evde sınırsız kalma hakkı.
Bergmann ve Becker evi bir temel üzerine yerleştirdiler. galvanizli su boruları. "Bölgeden bir müteahhit onlara kaynak yaptı. birlikte," diyor Bergmann. "Bunun dışında, olarak kullanmaya çalıştık mümkün olduğunca çok doğal malzeme ve aynı zamanda azaltmak için gerekli olmayanları en aza indirin."
Finlandiya'da Kabin
KabinHiçbir şey yok evde elektrik var, ancak küçük bir metalle donatılmış odun sobası ve sauna sobası.
Ayrıca evde su yok. "Şu anda inşa ediyoruz Kendi su filtreleme sistemimiz. Gölden gelen su ise İçilebilir," diyor, ancak tortu dolu. "Gelecekte, su basit bir tortu filtresinden geçirilecek ve sonra saunaya entegre [8 galonluk] su tankında ısıtılır soba." Bu arada şişelenmiş su getiriyorlar.
Kontrplak kaplı odaların içi sadedir. "masa, koltuk, kanepe ve şifonyer zaten uzun ömürlü arkalarında," diyor Bergmann. Bu mobilyalar eskiden onun büyükanne ve büyükbabanın evi ve bu küçük yeri rahat ve rahat.
"Aslında modülleri aracın boyutlarına göre uyarladık. mobilya," diyor Bergmann. "Mekanlar öyle inşa edildi ki her şey mükemmel bir şekilde uyacaktır. Örneğin, yatak odası ünitesi olduğundan emin olmak için tam olarak [79½ inç] genişliğinde yatak uygun olacaktır. Daha önce şifonyerin de ölçüsünü almıştık. odanın büyüklüğünü planlama."
The CabinÖzel özellikler — mutfak tezgahı ve yatak odası dolabı — ayrıca inşa edildi öğrenciler tarafından.
"Bir evin büyük olmak zorunda olmadığını göstermek istedik" diyor. "Güzel bir şey inşa etmek ille de pahalı," diye ekliyor Becker. Değerlerini iletmek istiyorlar tasarımlarıyla bir ev inşa etmenin mümkün olduğunu gösteriyorlar. kapsamlı pratik deneyim olmadan bile.
KabinSürdü bina denetimden geçmeden önce üç yaz çalışma 2017 sonbaharında Finlandiya inşaat otoritesi. "Zaman belirleyiciydi faktör," diyor Bergmann. "İlk yazdan sonra ev kışa dayanıklı, ancak iç ve tavan yalıtımı hala kayıp."
Öğrenciler şimdiden bazı projelerle bir sonraki projelerini planlıyorlar. diğer sınıf arkadaşları, bu kez müşteriler için: Finlandiya'da sauna ve Potsdam, Almanya'da daha büyük bir yazlık. Yakında mezun olacaklar ve kariyerlerine başlayacaklar. göl kenarı ev, "balık tutmak, okumak ve böğürtlen toplamak," diyor Bergmann.
Finlandiya'da Kulübe|||||| |||||
# Daire tadilatı