Nesilleri için Tasarlandı

Servista Turu: Woodsy Lakefront Kaçamağı İçin Tasarlandı Nesiller

Georgia gölüne bakan ahşap bir kulübe, ile geliştirmek için tasarlanmış zamansız stil ve malzemeler yaş

Yeni yazlık evinizi yeniden şekillendirirken, bir iç mimar bir bütçe ve onunla koşmasına izin vermek bir zaman alır çok güven. Neredeyse eşinizin seçim yapmasına izin vermek kadar güven evin içine kendi ayak basmadan. Ama bu iki küçük çocuğu olan bir Atlanta çifti olduğunda tam olarak ne oldu? ve bir başkası yolda bir hafta sonu inziva yeri bulmak için yola çıktı. salgının zirvesi.
Kocası uzun aramalardan sonra karanlığa atladı Blue Ridge Gölü'ne bakan birinci sınıf bir arazide ahşap kenarlı kabin kuzey Georgia, ulusal bir ormanın hemen kenarında. bu çift daha sonra uzun süredir iç mimarları olan Kathryn'e dokundu. Kabini davetkar hale getirmek için Meriwether Design Group'tan McAdams ve hem aile toplantıları hem de erkeklerin hafta sonları için işlevsel. Devam eden bir çalışma (banyo tadilatı bu kış başlıyor), ancak güven açıkça iyi yerleştirilmiş: Müşteriler sevgi dolu yeni parlak ve neşeli kaçamaklarının iyileştirilmiş düzeni, aşçının mutfak, klasik tarz ve doğal yüzeyler, tümü ile tasarlandı akılda gelecek nesiller.
Balıkçılık Kampı | Blue RidgeFotoğraftan ÖnceFotoğraflar yazan
Bir Bakışta Ev
Burada kim yaşıyor: Üç küçük çocuğu olan bir çift
Yer:Lake Blue Ridge, Georgia
Boyut:Yaklaşık 2.500 fit kare (232 metrekare); beş yatak odası ve dört banyo artı iki çatı katı
Tasarımcı:Kathryn McAdams of
Önceden:2007'de inşa edilen kabin ahşaptı ve McAdams'ın müşterileri onu satın aldığında tahnitçilik ağırlıklıydı ve mutfak ve yemek alanı tek seferde garip bir darboğaza sahipti giriş, burada görülüyor.
Özeti, onurlandırırken evi aydınlatmak ve modernize etmekti. onun ayarı ve mimarisi. Ve çalıştığı zamandan beri konukseverlik, yemek pişirmeyi ve eğlendirmeyi sevme, yeni bir şefin mutfağı ve mümkün olduğu kadar çok sayıda uyku alanı öncelikli olarak yüksekti liste.

McAdams kolları sıvadı ve ilerleme videolarını gönderdi. sivilceli resepsiyon ne zaman müşteri Atlanta'ya geri döndü izin verilir.

Balıkçı Kampı | Blue RidgeSonra:McAdams birinciliği korudu mutfak aletleri, ancak bir ada seçerek düzeni değiştirdi akışı iyileştirmek için bir yarımada yerine. Sonra bir ceviz koydu. bir ucunda servis arabası, yola çıkmak için mükemmel şarküteri ürünleri ve konukların kendilerine yardımcı olabilecekleri diğer atıştırmalıklar. Ayrıca buradaki ahşap lambri ve alçıpanı boyadı ve evin her yerinde tek renk, Sherwin-Williams' Dover Beyaz, saten yüzeyli.
Resim yapmak ya da yapmamak asırlık ve kutuplaştırıcı bir sorudur. ahşap söz konusu olduğunda. Ancak McAdams tereddüt etmedi.
"Erkekler ve yardımcılarım için bunu yapmak her zaman zordur, ama ben hiçbir çekincesi yoktu "diyor. "Doğal ahşabı severim, ama bu değerli bir ağaç değildi. C çamıydı." artı karışımı alçıpan ve ahşap lambri çatıştı ve göze hiçbir yer vermedi dinlenme.
"Boyayarak süreklilik yarattık ve biraz ekledik. modern parlaklık," diye açıklıyor McAdams. Ama düşük dereceli olduğu için çamın büyük delikleri ve budakları kaçınılmaz olarak boya, karakterini korumayı başardı.
Balıkçılık Kampı | Blue RidgeMutfağın yeni Shaker tarzı McAdams'ın bütçe dostu ile eşleştirdiği ankastre dolaplar seramik karo backsplash, zamansız bir görünüme sahip.
"Bunu onların sahip olacağı bir balıkçı kulübesi olarak düşündüm. nesiller" diyor. "Hatları gerçekten temiz tutmak istedim onlar için ve telaşlı hale getirmeyin, aynı zamanda 20 yıl olacak şekilde yapın şu andan itibaren uzayda kendilerini rahat hissedecekler ve bu modası geçmiş hissettirmez."
Kullandıkça patina geliştirecek doğal malzemeler seçmek, açık göztaşı tezgahı ve ham ahşap kulplar gibi, bir parçasıydı stratejisi.
"Buranın daha iyi görünebilmesini istedim "diyor McAdams. "Ara sıra kullanıyorum [tasarlanmış kuvars,] ama gerçek şu kisizinle çıkıyor proje çünkü teknoloji her zaman gelişiyor. geriye dönüp bakarsam bir 2008 projesi, baskı türünü [yaşa göre] söyleyebilirim, oysa doğal, zamana karşı dayanıklıdır."

Balıkçı Kampı | Blue RidgeMutfak, dar bir şekilde altı ila sekiz kişiyi ağırlayabilen özel yapım banket uzay. Banketin arkası Sherwin-Williams'ın imzasıyla boyanmıştır. Biberiye,aksanlarda yankılanan grimsi bir yeşil kabin boyunca.
Özel masa karaağaç, tezgah tabureleri sıkıntılı dalgaların karaya attığı odun ve zemin, McAdams'ın korumak zorunda kaldığı çam mutfak düzenini değiştirdikten sonra. ("Kutuyu açtığınızda, pişirmeliyim!" diyor gülerek.)
McAdams, "Ormanlarımı karıştırmayı seviyorum" diyor. "Eğer bir odun yaparsan evin tamamında, o mobilya takımı hissini alıyorsunuz. Bu durumda onları karıştırmanın anahtarının çam zemini olduğunu söylüyor. çeşitli renk ve tonlara sahip olan. "Kuyuyor Bu aralıkta doğal olan tüm ahşap kaplamalar benim tarzım. [d] uyum yaratın."
Balıkçılık Kampı | Blue RidgeMutfak kompakt bir yaşama açılıyor McAdams'ın bir yün kilim, küçük bir deri halı ile döşediği oda. bir sehpa için tezgah, örtülü bir kanepe ve örtülü sandalyeler dayanıklı Krypton kumaşında. Burada pratiklik ona ağır bastı doğal lifler için tercih.
"Islak popoları düşünmek istedim!" McAdams diyor. "Ne zaman [sen bir göl evi veya bir sahil evi tasarlayın, düşünmeniz gerekir güneş kremi ve küçükleri olan insanları düşünmelisiniz tamamen kuru olmayanlar."
Çevresi ahşap olan odunlu şöminenin yanında yerel granit, ikisinden birine çıkan bir sarmal merdiven uyku çatı katları.
Balıkçılık Kampı | Blue RidgeKanepenin arkasında 14 metrelik bir akordeon kapı, iki sürgüyü değiştirerek bitişik sundurmanın yapılmasına yardımcı oldu yaşam alanının bir parçası gibi hissetmek. Kapılar genellikle açıktır, McAdams diyor ki bu da sundurmanın ekranlarını kritik hale getiriyor.
Kapının sağına McAdams gölün bir haritasını asmıştı. evde buldular ve yeniden çerçevelediler.
Sundurma, küçük bir yoldan erişilebilen göle bakmaktadır. iskeleye inen rustik tramvay.

Balıkçı Kampı | Blue RidgeMcAdams, evin kütük dış cephesine sahipti daha modern bir görünüm vermek için siyaha boyadı, sonra taşıdı verandaya kadar renklendirin. Tavan doğal ahşap kalır, iç mekanla süreklilik yaratan.
Başlangıçta sundurma, McAdams'ın kullandığı ağır ahşap korkuluklara sahipti. daha iyi bir görüş sunan daha modern kabloyla değiştirildi aşağıdaki gölün. Sonra bir kesit ekledi (resimde yok) ve bu yemek masası Metal mobilyayı hortumla yıkamak kolaydır — bir Polenlerin siyah yüzeylerde kolayca ortaya çıkması nedeniyle gereklilik, McAdams diyor.
Balıkçı Kampı | Blue RidgeÖnce FotoğrafÖnce:Ana yatak odası birinci kat ve eskiden göle bakan verandaya bakıyor Alçıpan ve çam panellerin ayrık bir karışımına ve ilginç bir görünüme sahipti. dekor karışımı.
Komodinin üzerinde oturan yaratıklara bir bakın!

Balıkçı Kampı | Blue RidgeSonra: McAdams paneller ekledi duvarlarda ve tavanda, ayrıca Sherwin-Williams'ın çizdiği Dover White.
Yatağın altında doğal lifli bir kilim vardır. uyumlu bir komodin yerine geleneksel tarzda şifonyer, küçük odada hem saklama alanı hem de şıklık sağlar.
"Zorunda kalmadıkça hiçbir şeyi eşleştirmeyi gerçekten sevmiyorum" McAdams diyor. "Pek çok insan sahip olma konusunda gerçekten güçlü hissediyor. uyumlu bir komodin. Ama mecbur değilsen, yapma derim. çünkü bu size bir şeyler yapmak için gerçekten iyi bir fırsat veriyor görsel olarak ilgi çekici."
Balıkçılık Kampı | Blue RidgeMasa yerine sarkıt ışıkların kullanılması lambalar, şifonyerin üstünü temiz tutmaya yardımcı olur, böylece ev sahibi McAdams, büyük bir okuyucunun kitaplarını istifleyebileceğini söylüyor. Küçük vintage tabure, taşma için güzel bir iniş noktasıdır.
Pandantifler, yankılanan demir çubuklu beyaz alçı gölgelere sahiptir. evin her yerinde diğer beyaz sıva detayları.

Balıkçı Kampı | Blue RidgeEv sahiplerinin kızları bir ikinci kattaki yatak odası.
McAdams eski bir maun şifonyer buldu ve onu boyadı. Sherwin-Williams'ın Biberiyesi. Nevresimde pembe dokunuşlar var ve biraz tatlılık katmak için aksan, ama McAdams genellikle özellikle yetişkinler ise "değerli" çocuk odaları yaratmaktan kaçınır. sonunda onları kullanacak.
Balıkçılık Kampı | Blue RidgeŞimdilik oda aynı zamanda bir beşik var, ancak McAdams odayı iki ikiz barındıracak şekilde tasarladı kızlar büyürken yataklar.

McAdams, eski görünümlü bronz bir beşik seçti ama hepsi modern güvenlik özellikleri. Sonra odayı şu şekilde vurguladı: yerel olarak ve Etsy'de bulunan çizimler.
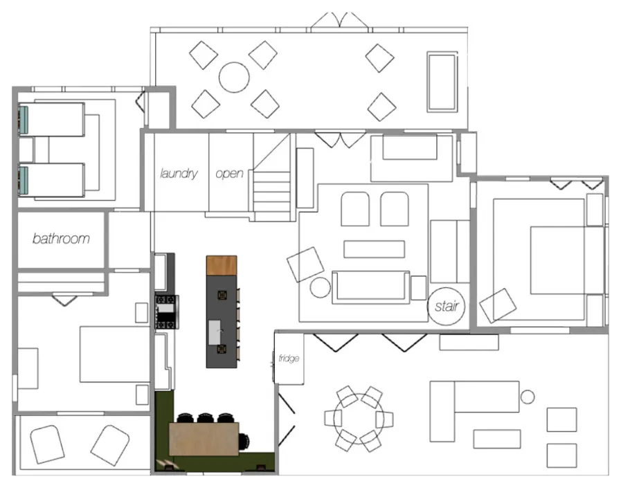
Balıkçılık Kampı | Blue RidgeEvin zemini ters plan — göl evlerinde yaygındır. (Bir planı görmek için en alta kaydırın ana seviye.)
Üst katta ana yaşam alanları ve üç yatak odası bulunur, ve alt katta bu da dahil olmak üzere iki ek yatak odası vardır. misafir yatak odası.
Balıkçılık Kampı | Blue RidgeBu ikinci misafir yatak odasında bir McAdams'ın "güzel" bir çözüm olan benzersiz yatak başlığı içine çarpan korkunç "beton temel duvarı oda.
"Bunu gerçekten vurgulamak ve bir değer haline getirmek istedim" dedi. diyor. "Bu yüzden özel dolgulu [satırdım] ve sonra komodinler kullandım orijinal sahiplerinden kalanlar."
Burada ve diğer yatak odalarında keten perdeler taktı. ışık kontrolü için karartma kaplamaları.
Balıkçılık Kampı | Blue RidgeÖnce FotoğrafÖnce:Alt katın düzeni, üst katta yaşayan bir aile odası ile üst katta ', room.
Balıkçı Kampı | Blue RidgeSonra:McAdams, az kullanılan alan, özel bir mavi renkle rahat bir mekana dönüşüyor 15 kişilik kesit.
McAdams, "Onlar çok sosyal böcekler," diyor. "Uyumak istedik ve bu adamların hafta sonları için mümkün olduğunca çok insan oturun ve aile toplantıları."
Balıkçılık Kampı | Blue RidgeTam ikinci bir mutfak da vardı bu gereksiz görünüyordu, özellikle alt seviye olmadığı için ayrı bir girişi var.
McAdams orijinal buzdolabını korudu ancak tam mutfağı değiştirdi bir içecek merkezi ile - mükemmel olan daha küçük bir kurulum bu düzeyde eğlence ve konukların kendilerini yapmalarına izin vermek için sabah kahvesi.
Balıkçılık Kampı | Blue RidgeMcAdams, kampın geri kalanını çevirdi mutfak alanını bir oyun odası ve sanat alanına dönüştürerek, fayansları kolayca temizler ve değiştirir.
Spot bir gün kart masaları ve ek olarak kullanılabilir oturma, diyor McAdams. Ama kabin hayal ettiği gibi kullanılırsa tasarladığı zaman olacaktı - "Onların küçük şimdi bebekler, ama ben onların onların küçük bebeklerini hayal ediyordum geliyor, "diyor McAdams — yakında gelmemesi için iyi bir şans var. amacını aşmak.
Servista Turu: Nesiller İçin Tasarlanmış Ormanlık Bir Göl Kenarı KaçamağıThe ana kat planı
Servista hakkında daha fazla bilgi


# Daire tadilatı