Servista Tour: Düşük Maliyetle Dönüştürülmüş Kompakt Ev

Bir mimarın sıcak, parlak tadilatı, şık ve maliyetleri kontrol ederken işlevsel alan

Evlerin Bu iki yatak odalı olduğundan, iyi işlev görmek ve benzersiz görünmek için çok büyük olun. Bristol, İngiltere'de üç katlı bir Viktorya apartman dairesinde, gösterir. Mimar olan sahibi Lizzie O'Neill onu kullandı Dairenin akışını ve hissini değiştirmek için beceri ve tasarım gözü düzen açısından çok az değişiklik yaparken.
Küçük, karanlık, salaş mutfağı aydınlık yaşama açmak alan, dönüşümün anahtarıydı. O'Neill daha sonra zekice kullandı ucuz ahşap, diğer doğal malzemeler ve ikinci el buluntular tüm daireye benzersiz bir görünüm ve huzurlu bir görünüm verin ruh hali.
EJ Studio Hampton RdFotoğraftan ÖnceFotoğraflar: Jolanta Valeniece of

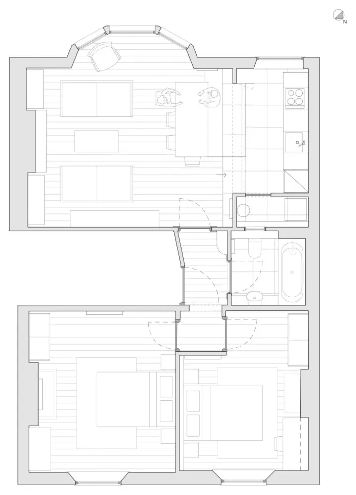
Bir Bakışta Daire
Burada kim yaşıyor:
Mimar Lizzie O’Neill, kimin yeniden tasarladı
Yer:Redland, Bristol, İngiltere
Boyut:İki yatak odası, bir banyo
Önce:İlk iş duvarı yıkmaktı, görüldü burada, oturma odası ve mutfak arasında. çıkarmak yerine tüm duvar, O'Neill daha küçük bir açıklık için gitti ve tuttu güzel korniş.

Hampton Yolu, BristolSonra:Mutfak artık bol miktarda oturma odasını paylaşın hafif.O’Neillbir malzeme odası ve kiler oluşturdu. bulaşıkların bulunduğu mutfağın sağında bakkaliye için makineve raflar.
"Yıkama makinesi sesini kapatmak için sürgülü bir kapısı vardır ve tüm dağınık şeyleri uzak tutun "diyor. "Duvarları boyadım orada, misafir yatak odasıyla aynı gri-yeşil renkte ve oturma odasında raf ünitesi, bu yüzden görünümü bağlar birlikte."
Meşe dolaplar büyük bir mağazadan. Boy dolabı sağda buzdolabı bulunur ve bir yanında küçük bulaşık makinesi, artı tekli fırın ve indüksiyonlu ocak sola.
Meşe raf özel yapımdı ve önünde saklanmak için bir dudağı var. bir LED şerit. LED, parlamayı önleyen bir difüzöre sahiptir.
Önceki fotoğrafta da görebileceğiniz gibi, adım banyonun drenaj ihtiyacı nedeniyle zaten oradaydı, ancak düzene yardımcı oldu. "Bu gerçekten hoş bir ayrım yaratıyor" O'Neill diyor.

EJ Studio Hampton RdFotoğraftan ÖnceÖnce:The mutfağın biraz sevgiye ihtiyacı vardı.
Hampton Road, BristolSonra:Gerçekten Mutfağı yükselten, arkasındaki çam çıta lambridir. hoş dikey çizgiler sunan yarımada. "İle çam kaplama, sadece oldukça bir şeyler yapmak istedim ucuz ve kolayca bulunabiliyor, yani bunlar kullanıma hazır, bir kontrplağa sabitlenmiş düz, yumuşak ahşap çıtalar, sonra sadece badanalı."
O'Neill kazanı tuttu (kısmen soldaki duvarda görülüyor) önceki fotoğrafta) paradan tasarruf etmek için aynı konumda ve sadece daha fazla panel kullanarak kutuladı.
Yarımada sadece 24 inç derinliğindedir. "Birçok insan bir mutfak adasının büyük olması gerekir, ancak bu, ihtiyacınız olan her şeyi yapar. buna ihtiyacım var," diyor O'Neill.
Kahvaltı barı yok. "Seviye değişikliği ile, olmaz Gerçekten uzun taburelere ihtiyacınız olacağı için oldukça çalıştınız, "O'Neill diyor. Bununla birlikte, sosyal ortamlarda iyi bir bar alanı oluşturur. orada bir içkiyle ayakta durabilen arkadaşlar. "Ve bazen duruyorum çalışmak için o tarafta "diyor. "Koymak için oldukça iyi bir seviye dizüstü bilgisayar açık, çünkü çok daha yüksek, bu yüzden ayakta durmak gibi çalışma masası."
Maliyetleri düşük tutmak için O'Neill oturma odasını değiştirmedi döşeme tahtaları, ancak turuncu cilalı çamı basitçe zımparaladı hafiflet. Mutfak döşemesi 24'e 24 inç beton görünümlüdür. porselen karolar.
Ev için orijinal olmasalar da, O'Neill eski haline getirdi. önceki "önce"de görülen pencere kepenkleri bundan sonraki çekimde fotoğraf çekildi.

Hampton Yolu, BristolThe çam lambri ritmi dikeyliğinde çoğaltılır backsplash karoları. "Bunları aldım çünkü o görünüme sahipler. el yapımı olmalarına ve daha uygun fiyatlı olmalarına rağmen Zellige'den daha, "diyor O'Neill. "Hafif leylak rengi bir tonları var. onlara."
Hampton Road, BristolMutfak ve oturma odası arasında, O'Neill bir yemek alanına yerleşti. Sandalyeler ona aitti. Nene. "Oldukça sarkık durumdalar, ama gidiyorlar oldukça güzel, "diyor. Meşe kaplama masa az sayıdaki masadan biridir. O’Neill'ın yeni satın aldığı mobilya parçaları.
Pencereler, ısı kaybını iyileştirmek için yükseltildi. "benim var yerel adam tüm pencereleri ince çift camla değiştirecek. Orijinalinden farkı anlayamazsın olanlar," diyor.
Hampton Road, BristolThe turuncu şömine karoları orijinaldir. "Onlar bir tür aşk ya da nefret ediyorum ama bence gerçekten iyi çalışıyorlar," diyor O'Neill gülmek. "Paletin tamamı oldukça dünyevi ve çok sayıda bitkiler, sanat eserleri ve antika mobilyalar, böylece fayanslar gider ve oldukça çarpıcı bir özellik."
Tavan madalyon orijinaldir. Şöminenin sağ tarafında, ikinci el bir çam dolabı TV'yi gizler.
Hampton Yolu, BristolSeçmek uzun zaman aldı oturma odası duvarları için kirli beyaz, veO'Neillbirçok boya denedi renkler."Önceki renk güzeldi ama ben istedim her şeyi aydınlık ve parlak hale getirmek için," diyor.
"Bunda hafif pembemsi bir ton var ama aynı zamanda taşlı — çok havalı değil "diyor. için güzel bir zemin oluşturuyor. farklı ahşaplar — daha turuncu bir renge sahip olan meşe ve TV dolabı ve döşeme tahtalarının çamı."
Duvar boyası: Rolling Fog Pale, Little Greene
Hampton Yolu, BristolGri-yeşil bir raf ünitesi, odanın uzunluğu ve kitaplardan favorilere kadar her şeyi tutar çömlek parçaları. "MDF'den özel yapım dolap yaptırdım ve boyalı, bu yüzden gerçekten basit ama benim eşyalarıma uyacak şekilde tasarlandı" O'Neill diyor. "Gerçekten bir ürün almanın uygun maliyetli bir yoluydu. büyük raf ünitesi."
O'Neill, modeli eski bir mimari için dolabın üstüne yaptı proje. "Bu, yapmak için zamanım olduğu günlerdeydi. modeller," diyor gülerek.
Kabin boyası: Mumlu Haki, Marshall Mirası
Hampton Yolu, BristolPerdeler basit pamuklu ve O'Neill, perde çubuğunu oluşturmak için az önce bir meşe dübel aldı. bu kanepe Ikea'dır ama bir pazar sitesinden alınmıştır. "Bir çift vardı daha yeni ikizleri olduğu ve çok düşük olduğu için ondan kurtulmak emzirmeleri için neredeyse yepyeni bir kanepe aldım. neredeyse hiçbir şey, "diyor. "Ayakları meşe olarak değiştirdim her şeyle evlen."
O'Neill tüm odalara yeni kolon radyatörler yerleştirdi. Boyunca dikey çizgilerle uyumlu.
Hampton Yolu, BristolO’Neill'in yatak odası benzer şekilde soluk, sakinleştirici bir gölge, ancak üzerinde pembemsi bir mor kullandı. dolap. "Sadece bu konuda biraz cesur olacağımı düşündüm," dedi. diyor.
Gardırop, duvarlar "biraz" olduğu için ölçüye göre yapılmıştır. sakat, "diyor O'Neill. Ne istediğine tam olarak karar veremedi kapılar için, bu yüzden başlangıçta onları bıraktı. O zamandan beri biraz koydu açık (sonraki fotoğrafa bakın).
Duvar boyası: Skimming Stone, Farrow & Ball
EJ Studio Hampton RdO'Neill sonunda panjurlu karar verdi gardırop için kapılar. "Sıra dışı çam kapılardı. Sığdırmak için kestim ve badanaladım" diyor.
Hampton Yolu, BristolYatak odası şöminesi, kayrak ocaklı orijinal Viktorya dönemi. "Biraz seviyorum kaba, yıpranmış bir görünüm," diyor O’Neill.
Hampton Road, BristolErcol meşe yatağı, O'Neill savurganlık yaptı. sergilemek için üzerine ince bir meşe raf yerleştirdi. resimler ve diğer hazineler. "Karıştırmanın güzel bir yolu," diyor. "Orada sık sık bir şeyler değiştiririm."
Hampton Yolu, BristolYan tarafında küçük bir sıra kanca yatak her şeyi düzenli tutar. "Bunlardan birkaç tane aldım antika pazarı - biri salon için, diğeri burası için, "O'Neill diyor. "Kıyafetleri yığmak yerine asmak güzel bence. onları bir sandalyeye oturtun."
Bank, kısmen yatak odasında kullanılmak üzere özel olarak yapılmış ve kısmen gerektiğinde yemek alanında fazladan oturmak için.
Hampton Yolu, BristolMisafir odası, aynı zamanda ev ofis, malzeme odası ile aynı yeşile boyanmış ve oturma odası raf ünitesi. "Sadece biraz daha rahat hissetmesini istedim Burada, "diyor O'Neill. "Diğer odaların tersi, hepsi hafif ama içinde bu rengin unsurları olan mobilya."
Yeşil, çeşitli keresteler için güzel bir fon olarak çalışır. — çam zemin, meşe yatak ve yenilenmiş yan sehpalar.
Hampton Yolu, BristolOda güzel bir görünüme sahip yapraklı bir manzaraya sahiptir ve çok sessizdir, bu nedenle burası ideal bir alandır. çalışmak için.Sağ bölmede bir masa var ve yedek yatak takımı ve ofis için soldaki raflar gereçler.
Hampton Road, Bristol"Ben yangın yönetmeliği nedeniyle bisikletimi aşağıda bırakamıyorum, bu yüzden kapandı, "diyor O'Neill. Kabin, şu öğeleri saklar: çok fazla kullanılmadığı için erişim sorun değil.
EJ Studio Hampton RdDoğal tonlar ve ahşabın hoş bir karışımı zeytin ağacından antika bir ayna ile banyoya devam ediyor kaseler ve bir çınar makyaj masası.
Makyaj masası Osmo yağı ile korunmaktadır. "Yapmamaya dikkat ediyorum üzerine çok fazla su döküldü, ama şimdi bir yaşında ve dayandı gerçekten iyi," diyor O’Neill.
EJ Studio Hampton RdThe karoların renk farklılıkları olan ilginç bir sırları vardır ve banyoya yeşil bir dokunuş getirin.
EJ Studio Hampton RdEv, O'Neill için mükemmel. "Eşit sadece iki yataklı bir daire olmasına rağmen, ihtiyaç duyduğu her şeye sahiptir ve her şeyi oldukça kolay bir şekilde toplayabilirsin," diyor.
Evi yenilemek ona gerçek bir takdir kazandırdı. "Mutfak ile yemek odası arasındaki duvarı yıkmak gerçekten ilginç şeylerden biriydi" diyor. "Rağmen üzerinde çıta ve sıva bulunan çok eski bir ahşap dikme duvardı, içini molozla doldurmuşlardı ve molozun içinde biz ilginç eserler bulundu - küçük içecek şişeleri, kibrit kutuları ve hatta yaklaşık 1900 tarihli bir sigara kartı.
"Yenileme sürecinde, daha fazlası oluyorsunuz binaya bağlı,çünkü öğreniyorsunuz bununla ilgili ilginç şeyler" diyor. "Bu, tam bir aşk emeğiydi."


# Daire tadilatı