Servista Turu: Doğu Kıyısı, Batı Kıyısı ile D.C. Sırasında Buluşuyor Ev
Bir iç mimar, bir çiftin geleneksel tarzlarını harmanlamasına yardımcı oluyor ve modern boho stilleri
yenileme eski evli çiftler için bile zor olabilir, ancak bu çift, nişanlıyken meydan okumayı üstlendi. 1889 Washington, D.C.'deki sıra ev, sahip oldukları ilk evdi. veya birlikte dekore edilmiştir. İç mimarın yardımını almak Rachel Chulew, aşkı arasındaki doğru dengeyi bulmalarına yardım etti. bir Doğu Kıyısı geleneksel görünümü ve onun tutkusu için Kaliforniya modern bohem havası. Fotoğraftan Önce"Sonra" fotoğraflarından yazan Sean Shanahan
Bir Bakışta Ev Burada kim yaşıyor:Bir çift yeni evli Yer:Washington, D.C. Boyut:2.052 fit kare (191 metrekare); üç yatak odası, 2½ banyo Tasarımcı: şirketinden Rachel Chulew Önce:D.C.'deki sıra evler genellikle oldukça dardır — sadece bir oda artı geniş bir bitişik koridor. bu yaşamaktı koridordan bakıldığında oda. Ahşap şömine çevreleyen ve önceki tadilatlar sırasında kitaplıklar eklenmiştir. çevre odanın ölçeğine tam olarak uymuyordu ve kitaplıklar iyi yapılmış. Orijinal değirmen işlerinin çoğu kaldırılmıştı. önceki yenilemeler. Ve orijinal zeminler kötüydü şekil. Chulew ve çift, en iyilerini koruma konusunda anlaştılar. Viktorya dönemi evinin mimari özellikleri ve yeni eklemeler doğrama işleri ve şömine gibi unsurlar onları geliştirmek için çevreler. "Müşterilerimin her ikisinin de harika bir mizah anlayışı var ve bu tasarımın eğlenceli unsurları aracılığıyla," diyor. Onlar sadece tam bir yenilemeden başarıyla geçmekle kalmadı, aynı zamanda onlar da düğünlerinden bir ay sonra taşınabildiler. Dallas merkezli Chulew, DC'de çiftle çalıştı. ve uzaktan. Müşterileri iş için seyahat ettiğinden, bu zordu. üçünün de aynı anda aynı yerde olması toplantılar için. "Bu süreçte Servista'u çok kullandık. Oldu fikir kitaplarını kullanarak fikir ve fotoğraf paylaşmak hepimiz için kolay nerede olursak olalım hepimizin erişimi vardı," diyor.
Sonra: Zeminde daha ferah bir his elde etmek için Birinci katta, koridor ile salon arasındaki duvarı kaldırdılar. odalar ve oturma odası, yemek odası ve mutfağı açtı bir başka. "Tipik bir D.C. sıra evinde, bu odalar bazen o kadar dar ki, kollarını açabilecekmişsin gibi hissediyorsun ve karşı duvarlara dokunun," diyor Chulew. bu ev değildi oldukça dar, ancak duvarları açmak her alanı hissettirdi çok daha ferah. Taşıyıcı duvarların kaldırılması için gereken çabaya değen büyük bir kirişin montajı. Birinci seviye boyunca, zeminler çok hasar gördü. korumak, bu yüzden Chulew onları zımparalanmış yeni meşe döşeme ile değiştirdi ve üstte orijinal zeminlere uyacak şekilde boyandı hikayeler. Dengeli Oturma Odası Oturma odasında, odanın mimari detayları yeni bir boyalı ahşap şömine rafı ile geleneksel kaldı ve sabuntaşı çevresi. "Bu sabuntaşı mükemmel denge eski ve yeni - uygun bir tarihi malzemedir, ancak daha açık renk taze, "diyor Chulew. Yenisinde tekrarladı medya dolabı sayaçları. Orijinal renkliyi korudu vitray pencereler ve onlara yeni panjurlar verdi sokaktan mahremiyet. Yeni süpürgelikler ve kavisli taç kalıplama daha geleneksel doğrama işlerini getirin. Chulew, bu geleneksel mimari temelin üzerinde, sahip mobilya, sanat ve aksesuarlarda çift katman Karısının sevdiği California modern bohem görünümü. "Bu tarz pek çok renk, beton kiremit, öyle olmayan deniz mavisi içerir geleneksel, modern çizgiler ve genel bir oyunculuk duygusu" diyor. İşte kırlentlerdeki geometri ve renkler, karamel renkli orta yüzyıl modern tarzda sandalyeler ve eklektik sehpa görünümü getirir. tablo tarafından yapıldı Kaliforniya'nın . Cam ve çelikle kaplanmış ahşap bir palet. kutu. Son olarak, sevilen siyasi çiftlerin portrelerinin sergilenmesi, geleneksel D.C. tasarım hareketi, ancak bu çalışmalar yerel sanatçıya ait Maggie O'Neill çağdaş ve renkli bir bakış açısına sahip. Bunlar Başkan Franklin D. Roosevelt ve eşine ait. Eleanor. Birinci kat boyunca duvar ve döşeme boyası Alabaster'dır. yazan . Fotoğraftan ÖnceAçılmış Yemek Odası oda Önceden: Yemek odası, mutfaktan bir duvarla ayrılmıştı. Bu fotoğrafın ön planındaki duvar ve oturma odasından arka planda duvar. Fotoğraf ayrıca bazılarını gösteriyor orijinal zeminlerde hasar. Sonra: Chulew yemek odasını mutfağa ve oturma odasına açtı. oda. Mobilya, çiftin nasıl olduğuna dair harika bir örnek. tehlikeye girdi - antika çiftlik evi masası onundu, o ise orta çağ modern tarzdaki yemek sandalyelerini seçti. şeffaf cam Küre ışıkları, ışığı engellemeden tepeye eğlenceli bir dokunuş katar. odanın içini çok fazla görüyor. Daha önce bu katta banyo yoktu, bu yüzden Chulew bir banyo koydu. gri kapının arkasında tuvalet. Rengi vurgu olarak kullandı süreklilik için birinci kat boyunca.
Önce FotoğrafDaha Hafif Hisseden Mutfak Daha önce: Küçük mutfak cansızdı. Sonra:Düzen hala bir mutfak, ancak Chulew üst dolaplardan kurtularak daha ferah hissettirdi. bu pencere duvarı. Klasik onun tarzı, desenli ise çini karo ona ait. Bu karo aralığı döndürür duvarı güzel bir odak noktasına çeker ve gözü yukarı çeker, bu da mutfağın düzeninin darlığından dikkati dağıtır. Kabine karodaki maviye uyması için renk karıştırıldı.
Tasarımcı depoyu diğer tarafta yoğunlaştırdı mutfağın. Sağdaki uzun, dar dolap derin bir kiler ve buzdolabı panellerin arkasına gizlenmiştir. aşırı sağ. Bir maun tezgahı, olduğu gibi bir yaş hissi verir. Shaker tarzı dolaplar. Puck ışıkları backsplash'i aydınlatır ve içki istasyonu olarak hizmet veren tezgah. "Evin her yerinde antika hissi uyandırmak için, yağla ovuşturulmuş bronz ve bulabildiğimiz her yerde eskitilmiş bronz," Chulew diyor. Buna dolap donanımı, musluklar ve ışık dahildir demirbaşlar.
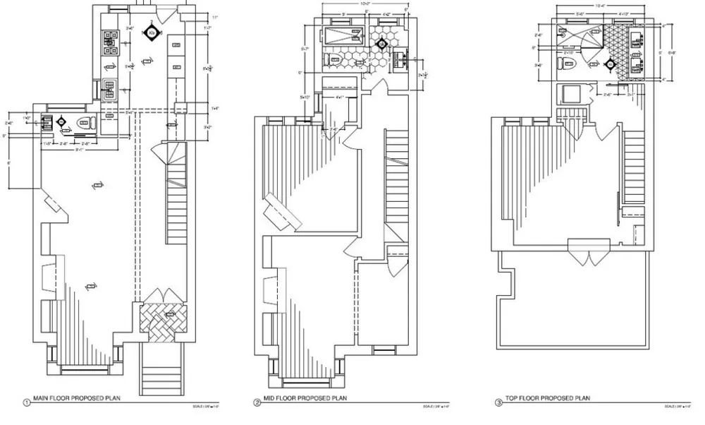
Yeni Toz Odası Süslü ayna, makyaj odasına geleneksel bir dokunuş katıyor. modern bir lavabo ve endüstriyel bir aydınlatma armatürü her şeyi karıştırırken yukarı. Renkli geometrik çimento kiremit ceviz ile kapatılmıştır. daha geleneksel mimari detaylara bağlanan süsleme evin. Burada görülen bir diğer detay pencere kanatlarındaki gri boyadır. (camı tutan ince tahta parçaları yer). Bunu pencere boyunca kullandı. house. Kat planla Üst kata çıkmadan önce kat planına bir göz atalım. bu birinci katta oturma odası, yemek odası, mutfak ve toz odası. İkinci katta, çiftin kullandığı iki yatak odası vardır. misafir odası ve oturma odası ve eksiksiz bir banyo olarak kullanın. Tüm üçüncü kat, eksiksiz bir banyo ile tamamlanan ana süitleridir. ve bir çatı güvertesine erişim. Planın alt kısmındaki odalar sokağa bak. Mutfak ve banyolar üst üste dizilmiştir. evin arkası. Fotoğraftan ÖnceSerene Guest Uzay Önce:İkinci kattaki bu misafir yatak odasında bir iyi olan güzel orijinal taş şömine surround shape. Sonra:Chulew sade bir taç ekledi tavanın etrafındaki kalıp - gelenekselin bir başka güzel karışımı stil ve modern sadelik. Çifti bir yola yönlendirdi. Odayı sakin ve hafif hissettiren gümüşi gri duvar rengi. Donanmaya doğru eğildiği için renk başka bir uzlaşmaydı ve beyaza doğru eğildi. İndigo batik yastıklar ve rahat kumaş katmanları ona çok yakışıyor. tarzı, geleneksel berjer koltuğu ise onunkine yakışıyor. yatak çelikten yapılmış basitleştirilmiş bir kanopi. Şöminenin üzerindeki sanat eseri zaten sahip oldukları bir Matisse baskısı. Önce FotoğrafÖnce:Misafir banyosu eski, karanlık ve çok geniş değil. Sonra: Chulew, bitişik bir odadan alan ödünç alarak hareket edebildi. tuvalet ve lavabo yeni bir alana. oda tam oldu yaptırdığı Art Deco tarzı küvet dışında yenilenmiştir. yeniden sırlandı. Armatürler yağla ovulmuş bronzdur. Duş karoları klasik metro, ancak 2'ye 8 inç boyutları görünümü günceller - geleneksel ve modern. Ve Sen İyi Görünüyorsun günlük olumlaması karısınındı. fikir. Çini üreticisi onu küçük altıgen karolardan yaptı. Chulew'in Skype aracılığıyla denetimi. Altıgenler, varyasyonla büyük bir boyutta zeminde devam ediyor karısının sevdiği deniz mavisi tonları. Büyük boy ayna ve aplikler vintage dokunuşlar ekler ve almak için iyi bir yer sağlar sabah hazır.
Fotoğraftan ÖnceRahat Üst Kat Salon Önce:İkinci kattaki bu ikinci yatak odasında, girinti, içine pek sığmayan bir yatakla döşenmişti. Ev sahipleri buranın kendi TV yuvaları olacağına karar verdiler ve genel dinlenme yeri. Sonra:Chulew kalıplama ekledi, yeni şömine çevresi, ankastre dolaplar ve raflar ve ankastre altında depolama ile pencere oturağı divan. Çifte yardım etti duvarlar için doymuş bir maviye karar verdi ve sonra yardım etti odayı döşerler. Rahat bir seksiyonel kanepe, içine rahatça sığar okumak için apliklerle donatılmış oyuk. Chulew, "Bu yuvada çok zaman geçiriyorlar," diyor. "İzliyorlar Kanepeden TV, divandan çalışmayı seviyor ve onlar eğlendirmek için çok rahat oturmak istediler burada." renkli patchwork kilim, evin tonunu belirleyen olmazsa olmazlardandı. oda. Mavi boya ve parlak vurgular onu hissettiriyor enerji dolu ve davetkar. Oyma ahşap sehpa, Danimarka modern tarzı koltuklar, altın rengi Fas pufu, yastıkların ve tekstil katmanlarının küresel karışımı Oda, rahat bir Kaliforniya modern bohem havasına sahiptir. onun daha fazlası geleneksel tarz, şöminenin çevresinden gelir. Çalkalayıcı tarzı dolaplar ve diğer yeni doğrama işleri. yerleşik dolap, eşleşen sabuntaşı tezgahlarla tamamlandı ocak. Pencere kenarı çift kişilik bir şiltedir ilave yatak olarak hizmet veren bu oda, misafir odası. "Geceleyen misafirlerinin çoğunun çocukları var, bu yüzden biz de Chulew, bu odayı tasarlarken bunu aklında tuttu," diyor. Fotoğraftan ÖnceRenkli Ebeveyn Banyosu Önce: Çift, üçüncü katın tamamını yapmaya karar verdi. onların ana süiti. Önceki ev sahipleri üçüncü kullanmıştı kat misafir katıydı, bu yüzden buradaki banyoda bir ebeveyn banyosunun gerektirdiği depolama ve işlevsellik. Sonra:Chulew banyoyu tamamen yaptı söküp yeniden yaptı. Blues geometrik beton zemin ve yeşillikler işleri canlandırır ve başka bir eğlenceli ekler Kaliforniya'dan ilham alan dokunuş. Hazır bir çift lavabo buldu tam olarak uyan ve sonra boyatılan gösteriş deniz salyangozu. Makyaj duvarı daha geleneksel bir tarz getiriyor - bu yıpranmış tersane ve ayna ve aplikler antika Bakmak. Aynada duş karosunu görebilirsiniz. üzerinde balıksırtı desenli başka bir uzun metro karosu solda ve ayrıca yıpranmış bir tersaneye sahip olan tuvalet köşesi duvar, sağda.
Fotoğraftan Önceİç Mekan-Dış Mekan Kentsel Yaşam Önce:D.C.'deki bir ev için inanılmaz bir varlık olan çatı güvertesi, potansiyeline ulaşamadı. Sonra: Bu alan, Kaliforniya modern bohem tarzı. Sağda, bir lavabo, buzdolabı ile tamamlanmış yeni bir açık hava mutfağına bir bakış ve sabuntaşı sayacı. Çift, sabahlarını geçirmeyi sever kahveyi demlemek için iki kat aşağı inmek yerine burada kahve. Ve bu açık mutfak, onları birçok kez yukarı ve aşağı yolculuk yapmaktan kurtarır. Güvertede eğlenirken kokteyller için merdivenler. Teak dış mekan mobilyaları Sunbrella hava koşullarına dayanıklı kumaşlar. Bu set artı bir beton sehpa, bir dış mekan halısı ve modern ekiciler güverteyi bir çiftin rahat bir ortamın tadını çıkardığı konforlu ve davetkar alan şehrin ortasında açık-kapalı yaşam tarzı. Artık yeni evliler zorlu bir sınavın üstesinden geldi düğünlerinden yaklaşık bir ay önce tadilat. "Hepimiz olduğumuzda bitti, balayına gitmek istemediklerini söylediler yine de evi o kadar çok sevdikleri için istemediler ki bırakın," diyor Cheluw. Paket Servisler
Siz ve partneriniz stil bulmakta zorlanıyorsanız gibi yetenekli, tarafsız bir üçüncü kişiyi görevlendirin. iç mimar.
Bir kat planını açmak her zaman kapıyı çalmak kadar kolay değildir birkaç duvardan aşağı. Bu çift kendini daha fazlasına sahip olmaya adamıştı. uzay ve dev bir yapı kurma zahmetine girdi kiriş.
Geleneksel mimari, modern zaman stili öğeleri.
Konsantre üst dolaplar, duvar fırınları ve buzdolabı bir iç mutfak duvarında. Bu pencereler için yer bırakacak ve dış duvarlar boyunca bir miktar nefes alma odası.
Pencere pervazınız hafifse, sadece kanatları boyayın. koyu renk göze çarpar.
Pek çok eski küvet, yeni bir sırla kurtarılabilir. Ve bunu sizin yerinize yapacak bir profesyonel bulmanıza yardımcı olabilir.
Hazır bâtılaların pek çok boyutu vardır ve boya, mutfak tezgahı, musluk, lavabo ve donanım.