Servista Tour: секрети, світло та рок-н-рол Манхеттен

Дві двоповерхові квартири об'єднані в один просторий сімейний будинок в поверхова будівля на Верхньому Вест-Сайді в Нью-Йорку

На Верхній Вест-Сайд Манхеттена, нещодавно архітектор Бен Герцог завершено масштабну реконструкцію, яка перетворила дві темні двоповерхові квартири в єдиний світлий будинок для сім'ї чотири. Проект відбувався в одному з найповерховіших районів міста споруди: Піфійський храм, дев'ятиповерхова споруда укр з глазурованою теракотовою плиткою та єгипетськими мотивами. Його інтер'єр було перетворено на кондомініуми у 1980-х роках. Але якби стіни могли говорити, вони, мабуть, розповідали б про лицарів Піфії, секретних братське товариство, що збудувало будову в 1927 р., та о Білл Хейлі та його комети, які записали «Rock Around the Clock» там у 1954 році.
У певному сенсі піфіянин таки розмовляв Herzogпід час нещодавнього ремонту. Він величезний, бетонні ферми диктували планування нової квартири голосно і чітко. На щастя, виклики, які вони поставили, спонукали творчі рішення від Герцога та його команди. Результатом є a сучасний, зручний для життя будинок із ефектними сходами та барвистим минуле, а також кімнати, які зберігають кілька їхніх секретів власний.

Комбінація дуплексу Upper West Side - простір подвійної висотиФотографії Бретт Бейєр
Огляд будинку
Хто тут живе:подружжя та їхній маленький син дочка
Розташування: Верхній Вест-Сайд Манхеттена
Розмір:2500 квадратних футів (232 квадратних метри); три спалень, 3½ ванних кімнат
Дизайнери: Бен Герцог (архітектор), Джулія Конті (інтер'єр дизайнер) і Сара Роудс (менеджер проекту) з
Забудовник: Interboro Design Group
Проживши в одній двоповерховій квартирі-дуплекс в Піфії за Через деякий час родина купила меншу двоповерхову квартиру поруч двері. Домовласники мали бачення того, чого вони хотіли, але знали цього було б непросто досягти.
«Він трохи повозився всередині і дійсно знав це дивна структура», — каже Герцог про чоловіка. "Він хотіли більше світлого простору для своєї родини, а в деяких Логічний шлях, поєднати ці дві досить божевільні квартири».
Герцог і його команда спеціалізуються на таунхаусах і квартирах ремонту в Брукліні та Манхеттені, тому вони були до завдання. Їхньою ідеєю було створити їдальню подвійної висоти, бар, житловий і кухонний простір (див. тут), потім організуйте приватне простору навколо нього. Для з'єднання основного і міжповерхового рівнів вони спроектовано центральні сходи та підвісний подіум (докладніше інженерний подвиг пізніше).
Спальні на мансарді мають сталеві внутрішні вікна, що виходять на зона відкритого планування, яку облаштувала дизайнер інтер’єру Джулія Конті з обіднім столом з білого дуба, чорними стільцями зі спинкою та a драматична люстра Lambert & Fils.
Фарба для стін: Білий голуб, Бенджамін Мур; оздоблення та фарба дверей: Шантійське мереживо, Бенджамін Мур

Servista Tour: Upper West Side Duplex (підтверджено)Раніше ФотоДо:Одна з двох оригінальних кухонь мала базова обробка та незручний план поверху. «Це був один із тих тупикові кухні, з яких немає виходу», — каже Герцог.
Комбінація дуплексу Upper West Side - кухняПісля: нова, розширена кухня має значно покращений потік завдяки центральній острів. Конті вибрав індивідуальні вставні шафи та відточив Opus Білий кварцит для стільниць. Дерев'яні стелажі, зістарена латунь тягне та геометричний синьо-білий бігунок додає тепла повністю біла гамма, при цьому решітки під вікном майстерно приховати систему опалення.
Двустороння комбінація верхнього західного бокуТабурети зі шкіри та сталі для сидіння під дерев'яною стільницею біля кухні. Щоб розширити площі кухні, Герцог і команда хотіли перемістити асортимент, але їх завадили фіксовані газові лінії будівлі. Так вони створив три чорні вертикальні колони між кухнею та їдальня, частину якої ви можете підглянути тут. Одна колонка приховує газопровід, а в інших – електричний канал для світлодіодів освітлення.
Підлога тут і в усьому домі є розщепленою Мадера створила білий дуб із натуральним покриттям.

Комбінація дуплексу верхнього західного боку - кухняЗа двочаш Раковина у стилі фермерського будинку та змішувач із нержавіючої сталі блискучі білі задня плитка ручної роботи, кожна з яких виглядає як літера H і блокування для створення сучасного геометричного малюнка. вище висить напіврівний підвісний світильник ручної роботи (з Південної Кароліни студія Worley’s Lighting), яка має тонко вигляд, натхненний серединою століття.
Герцог каже, що спочатку смак клієнтів був досить традиційним, але розвивався в міру розгортання проекту. «Ми скеровували їх у більше сучасний напрямок, який мені здається більш доцільним для в будівля», — каже він.
Комбінація верхнього дуплексу із західної сторони - барБрус під catwalk містить красиві шпалери, розписані вручну аквареллю The Pattern Collective. Сховище вина та фужерів займає ліва шафа, та кавова станція з вбуд еспресо-машина справа.
Комбінація двоповерхових апартаментів Upper West Side - дамська кімнатаІнше вражаючі шпалери — це від Cole & Son Fornasetti Senza Колекція Tempo — покриває стіни в нижньому поверсі пудрою кімнату, а відшліфований мармур Calacatta Gold увінчаний горілим помаранчевим марнославство. Латунна шафа у формі спалаху зірки тягне за собою світильники з матового золота та дзеркало з яскравими сонячними променями, оточене напівпрозорі алебастрові підвіски.
Красна фарба: Jupiter Glow, Benjamin Moore
Дворівнева кімната Upper West Side - спальняОсновний поверх Основна спальня має ліжко з вигнутим оксамитовим узголів'ям і забавою постільна білизна з китицями та помпонами. Килим в марокканському стилі, тумбочка в стилі модерну середини століття та підвіска ручної роботи лампа завершує трохи богемний образ.
Комбінація дуплексу Upper West Side - головна ваннаОсновний стільниця ванної кімнати та застібка виготовлені з каррарського мармуру, який контрастує з пофарбованим у чорний колір туалетним столиком і полірованим хромом світильники, тягне та бра. Ця кімната раніше була кухнею однієї з двох оригінальних двоповерхових квартир.
Марнославна фарба: Чорна пантера, Бенджамін Мур
Комбінація дуплексу Upper West Side - лічильник макіяжуМіж подвійна раковина та туалет (без зображення) мають мармурову верхню частину туалетний столик, кругле дзеркало якого відбивається в одному з косметичні дзеркала на попередньому фото. Стіл рожевою фарбою і пухнастий табурет пом'якшує чорно-білу палітру ванної кімнати.
Фарба для стінових панелей: Sterling, Benjamin Moore
Комбінація дуплексу Upper West Side - головна ваннаThe основний поверх ванної кімнати покритий каррарським полем розміром 12 на 12 дюймів плитка з підігрівом електричним матом. Всередині сталь і скло закрите мокре приміщення, де раніше була повноцінна ванна, підлога є класична стільникова плитка, а стіни покриті глянцем біла плитка метро.
«Усі душові прилади, які ви бачите на цьому фото, є [на] стіні, повній труб, так що це справді визначило макет цієї ванної кімнати», – каже Сара Роудс, яка керувала проект.
Вони навмисно тримали ванну відносно відкритою для обслуговування Доступність ADA, каже Роадс.
Комбінація дуплексу Upper West Side - гардеробнаВсе не так що здається в первинній шафі, яка відкривається для обох ванна кімната і спальня. Якщо ви уважно подивитеся на внизу задньої стінки, під полицями, заповненими кошиками, ви можна побачити невелику щілину та шарнір. «Це секретні двері», Герцог говорить. «Це все відкривається, і там маленький тамбур за ним, який вони використовують для зберігання. Він також підтримує старі вхідні двері однієї з квартир."
Комбінація дуплексів Upper West Side - домашній офісКрасень офіс із вбудованим столом із горіховою верхівкою, зістареними латунними ручками та Акценти в стилі середини століття-модерн займає той же кут перший поверх як основна ванна кімната та спальня. Чи можете ви побачити, що ховається за фасадами шаф?
Фарба для панелей і столів: Deep Royal, Benjamin Мур
Servista Tour: Upper West Side Duplex (підтверджено)Раніше ФотоРаніше:Вони величезні в бетонному корпусі ферми, що проходять між основною ванною кімнатою та офіс, виставлений тут під час будівництва. Ферми були неможливо зрушити з місця, а інтегруватися в нього складно дизайн.
Комбінація дуплексу верхнього західного боку - сходиПісля: Ось той самий вигляд, але ферми тепер замасковані за a центральні сходи та подіум. Білий дуб, скло та експозиція конструкційна сталь зв'язує всю квартиру разом, буквально і візуально.
Ліворуч від сходів знаходиться кабінет; фасад квартири двері праворуч.
Комбінація дуплексів Upper West Side - вхід і сходиШафи з інтегрованими ручками вбудовані в сходи та навколо неї. "Він не хотів відмовлятися ні дюйма від цього місця», — каже Герцог про чоловік. «Там, де немає структури, є сховище». The двері шафи, які видно тут праворуч, відкриваються не розхитанням, а скоріше, витягнувши прямо, геніально відкриваючи брусок для підвісного зберігання.
Комбінація дуплексу Upper West Side - куток для читання та коридорПротягом У процесі проектування команда виявила велике низьке світло колись стояла стіна між двома квартирами. Промінь форсований щоб побудувати сходи на кілька ступенів нижче подіуму. «Ми вирішили це за допомогою цієї маленької ніші для читання, яка, на мою думку, є моєю улюблене місце в квартирі», - каже Герцог.
Тонкі вертикальні сталеві стрижні, що простягаються від подіуму до стеля підтримує конструкцію. «Ми в основному повісили його на наявні балки вище, щоб це запрацювало», – каже Герцог.

Комбінація дуплексів у верхній частині західної сторони - спальняA компактна спальня для хлопчика з вбудованим узголів’ям і Настінні лампи для читання розташовані на сході мезоніну крило, над основною кімнатою.

Фарба узголів'я: хутро єнота, Бенджамін Мур

Servista Tour: Upper West Side Duplex (підтверджено)Раніше ФотоРаніше:буваюча ванна кімната на верхньому поверсі в цьому крилі бути темним і застарілим.
Дворівневе приміщення Upper West Side - ванна кімнатаПісля: нова ванна кімната зберігає оригінальний план поверху, але тепер світла і стильний, багато в чому завдяки відточеному каррарському мармуру стільниця, нове освітлення в промисловому стилі та недорогий білий колір плитка, що покриває стіни та передню частину гідромасажної ванни. "Це просто 3 долари за квадратний фут, але просто використовуючи багато різних форм «плитка» робить його дуже, дуже розумним», – каже Роудс. Марнославство є меліорована сосна.
Комбінація дуплексів Upper West Side - пральняВхід Шафа біля ванної кімнати перетворилася на цю бадьору пральню кімната з міцною білою стільницею з обробленого каменю, глибокою раковиною і настінну сушарку. «Ці машини просто пройшли минуле ферма!» - каже Герцог із сміхом.
Фарба для шаф: True Green від Бенджаміна Мура
Дворівнева кімната Upper West Side - спальняЄ друга спальня, ванна кімната і гардеробна на верхньому рівні західне крило. Кімнати, якими користується маленька дочка подружжя мають солодкуватий (але не цукровий) рожевий колір. The химерні небесні шпалери для спальні відCole & Син.

Servista Tour: Upper West Side Duplex (підтверджено)Раніше ФотоДо:Супутня ванна була Освітлення в голлівудському стилі, але мало інших, що заслуговують на увагу особливості.
Дворівнева кімната верхнього західного боку - ванна кімнатаПісля:Дякую до макіяжу, ванна тепер зірка. Як і з іншими нагорі планування ванної кімнати залишилося незмінним, але тепер вона може похвалитися латунню фурнітура, шестигранна плитка для підлоги в горошок, по вертикалі лососево-рожевий складені плитки метро до висоти поручнів стільця та малого формату шестикутні плитки вище. Відповідний туалетний столик із каррарським верхом і ванна і підкладка ніші надають дотик міської витонченості кімната.
Servista Tour: секрети, світло та рок-н-рол у нью-йоркському дуплексіДо:The план поверху для основного рівня оригінальних двох квартир показує, як кожен функціонував як самостійна одиниця.
Servista Tour: Upper West Side Duplex (підтверджено)Після: Новий план поверху головного рівня показує масштаби ремонт і як кімнати тепер поєднуються.
Servista Tour: секрети, світло та рок-н-рол у нью-йоркському дуплексіДо:The розкривається план поверху мезоніну оригінальних квартир як кожна квартира була сконфігурована зі сходами до мансарди спальня.
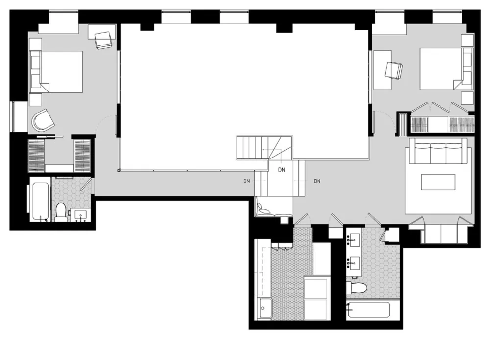
Servista Tour: Upper West Side Duplex (підтверджено)Після: Новий план антресольного поверху показує, наскільки приватні простори зараз розташовані на мансарді оточіть відкритий простір подвійної висоти з одним набором сходів між двома рівнями.
Інженер-конструктор: D’Huy Engineering


# Ремонт квартири