Servista Tour: одноповерхове бунгало піднімає дах

Чисті лінії та стриманий інтер’єр цього пляжного будинку переконайтеся, що всі погляди прикуті до ефектного дизайну особливості

Спочатку це було темне закрите бунгало окрема власність стала відкритим, заповненим світлом будинком у пляжному стилі завдяки приголомшливому доповненню та повному ремонту салону. Власники, сім’я з п’яти осіб, купили одноповерхівку 1980-х років бунгало кілька років тому, знаючи, що це займе багато часу і працювати над створенням практичного та затишного дому для них розширення сім'ї. Проте безпосередня близькість до Сіднея Північних пляжів було достатньо, щоб змусити їх піднятися виклик.
Липкий дзьоб тижня: прибудова першого поверху піднімає дахБудинок з першого погляду
Хто тут проживає: пара з трьома дітьми та двома коти
Розташування: район Менлі-Вейл у Сіднеї
Розмір: 1647 квадратних футів (153 квадратних метри); п'ять спальні, три санвузли
Архітектор:
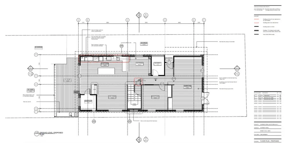
Головним пріоритетом для власників було розкрити будинок, наповнити зі світлом і створити функціональний дім для зайнятої родини. У прибудові верхнього рівня тепер розташовано чотири спальні та дві ванні кімнати, у тому числі розкішний будинок для батьків із вхідною кімнатою шафа та балкон. Внизу були зняті стіни і макет переконфігурований для створення великої кухні-їдальні та вітальні простір, що перетікає в задній сад.
Липкий дзьоб тижня: прибудова першого поверху піднімає дахДо ФотоСпочатку будинок був бунгало з трьома спальнями, з вітальнею відкритого планування та кухнею-їдальнею.
Липкий дзьоб тижня: прибудова першого поверху піднімає дахДо ФотоАрхітектор Джон Дойкрасс зберіг вид ззаду будинок, зберігаючи двостулкові двері. Він також працював зі стільки ж по можливості оригінального планування кухні, заміна шаф і прилавки, а також додавання банку індивідуальних шаф.
Липкий дзьоб тижня: добудова першого поверху піднімає дахВерхній поверх
Будинок ManlyValeУ Крім того, відкриті крокви, пофарбовані в білий колір, сприяють відчуттям простору та світла в будинку батьків, додайте інтересу та драма до скороченого інтер’єру. Розкішні сірі кріплення для килимів повністю біла палітра, в той час як акценти теплого дерева розсіяні навколо для згуртованості.
Фарба для стін і стелі: Lexicon Quarter, Dulux

House Manly ValeНайбільша проблема, з якою зіткнувся Дойкрасс під час проекту були жорсткі часові обмеження власників встановити. «Незважаючи на те, що ми зіткнулися з обмеженнями невдачі щодо сусідніх об’єктів, ми змогли досягти сумісного планування і схвалення будівництва … і отримати прискорену оцінку. Це була величезна перевага для проекту, оскільки у нас було тісно кінцевий термін, який потрібно виконати», – каже він.
ManlyVale HouseПишний перегляди були першими у списку бажань, як і орієнтація на сонця, тому лінію даху було продовжено над балконом, щоб створити a навіс і захист від спеки.
«Напівзакритий балкон також був розроблений для забезпечення приватності із сусідніх об’єктів», – каже Дойкрасс.
Килим:
Manly Vale HousingDeuchrass і власники вибрали зовнішній сайдинг Scyon від James Hardie захист від берегової стихії.
Продовжує на балконі розбивати білі стіни і кувати зв'язок між внутрішнім і зовнішнім.

House Manly ValeЗона туалетного столика була створена в альков у головній спальні з висувним ящиком приховати безлад.
«Ми використали елементи дерев’яного шпону по всьому будинку, щоб додати тонке тепло до холодних сірих і білих тонів і натяк на a вишукане відчуття пляжу», — каже Дойкрасс.
Будинок МенліВейлЗа межами гардеробної, сучасний en люкс пропонує сюрприз із привабливим візерунком і жирним шрифтом облицьована чорною плиткою стіна. «Ми хотіли, щоб ця кімната була контрастом до спокійний повністю білий простір поруч і запропонувати підбадьорливий атмосфера», — каже Дойкрасс.

House Manly ValeОскільки кімната заливається світлом від an Велика кількість матових вікон, простір міг зайняти інтенсивністю стіни, оздобленої чорною плиткою, у той час як обтічна раковина та туалет — із прихованим бачком — зберігайте відчуття яскравості та просторий.
Чорна вішалка для рушників - це розумна альтернатива звичній хромованій дизайну, оскільки він привертає увагу на білій стіні та допомагає внести гармонію в однотонну гамму.

Житловий будинок Manly ValeТри дитячі спальні на нов першого поверху, як і сімейна ванна кімната, яка спроектована в на відміну від ванної кімнати в готельному стилі. Пара пішла на а прохолодне прибережне відчуття цього простору з розслабленим шпоном коряг на туалетному столику та водянисто-блакитній настінній плитці.
Липкий дзьоб тижня: добудова першого поверху піднімає дахЗемля поверх
Будинок ManlyValeThe перший поверх також зазнав величезних змін, зокрема інтер'єр видалені стіни та змінено планування, щоб створити відкрите планування кухня, столова та житлова площа, а також окремо гостьова простір-кум-румпус кімната. «На самій кухні ми працювали з існуючий план поверху настільки, наскільки ми могли, не тягнучи все назовні», — каже Дойкрасс, створюючи великий центральний острів буде збережено.
Кухня відповідає невимушеній прибережній тематиці спальні та сімейна ванна кімната з базовими блоками морського кольору з чистою білою стільницею. Спеціальне сховище тепер створює акуратний банку одиниць навколо холодильника, поки продовжує тонкий Тема пляжного будиночка.
Житло Manly ValeІнше зв’язуючим елементом є захисна плитка, яка була покладена в a візерунок «ялинка», схожий на той, що в сімейній ванній кімнаті, в той час як натяки на бліде дерево приправлені навколо простору для тепла та згуртованість.

House Manly ValeЗавдяки стислим часовим рамкам проект було завершено в травні 2017 року після 11 місяців будівництво. «Ми ретельно планували проект, починаючи кам'яні ключові дати та віхи, коли все має бути завершено, щоб ми могли досягти крайнього терміну», – Дойрас каже.
Конструктор:
| | | | | | | | | | |
# Ремонт квартири